Hollywood Little Ranches For Sale
2323 Polk St, Hollywood, FL 33020

$2,396,500
En venta
Mila Bogatov
Mila Bogatov
Corredor Inmobiliario

Detalles


  • Número MLS:A11938458
  • Tour virtual:
  • Precio: $2,396,500
  • Impuesto anual:$23,284
  • Fecha de listado:March 24, 2026
  • Días en el Mercado:61

Descripción


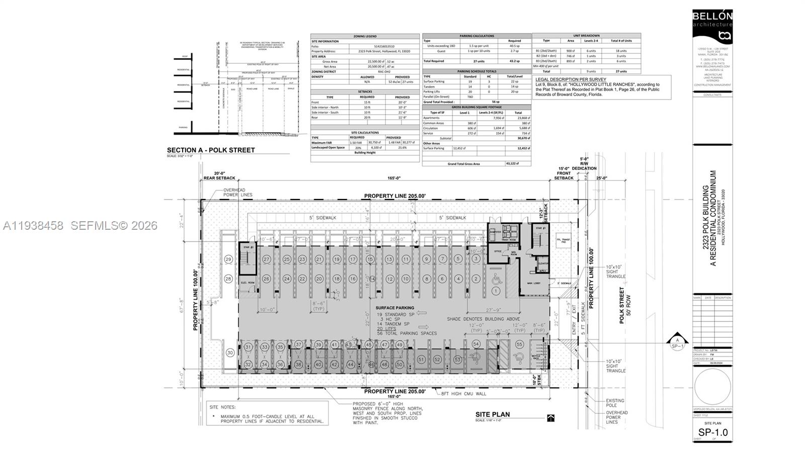
Exceptional development opportunity at 2323 Polk Street, Hollywood, FL. Approved plans for a 4-story, 27-unit multifamily project located within the Regional Activity Center (DH-2 zoning), recently approved by the City of Hollywood Planning and Development Board. The project is thoughtfully designed for efficiency, featuring mostly 2BR/2BA units and 56 total parking spaces, including standard, ADA, tandem, and mechanical lifts—an uncommon advantage in the submarket. The area is predominantly rental-focused, creating a rare opportunity for a condo-oriented or ownership-ready product. Ideal for developers or builders seeking a near shovel-ready project while avoiding the time and cost of entitlements. Offering Memorandum available; plans and additional documentation upon request.

Localización


Información requerida
Mila Bogatov
Mila Bogatov
Corredor Inmobiliario