Wiles Road Center Business For Sale
12362 Wiles Road, Coral Springs, FL 33076

$510,000
Vendido
Mila Bogatov
Mila Bogatov
Corredor Inmobiliario

Detalles


  • Número MLS:A11207400
  • Tour virtual:
  • Precio: $555,000
  • Precio vendido: $510,000
  • Impuesto anual:$4,887
  • Fecha de listado:May 19, 2022
  • Fecha Vendido: September 15, 2022
  • Días en el Mercado:118

Descripción


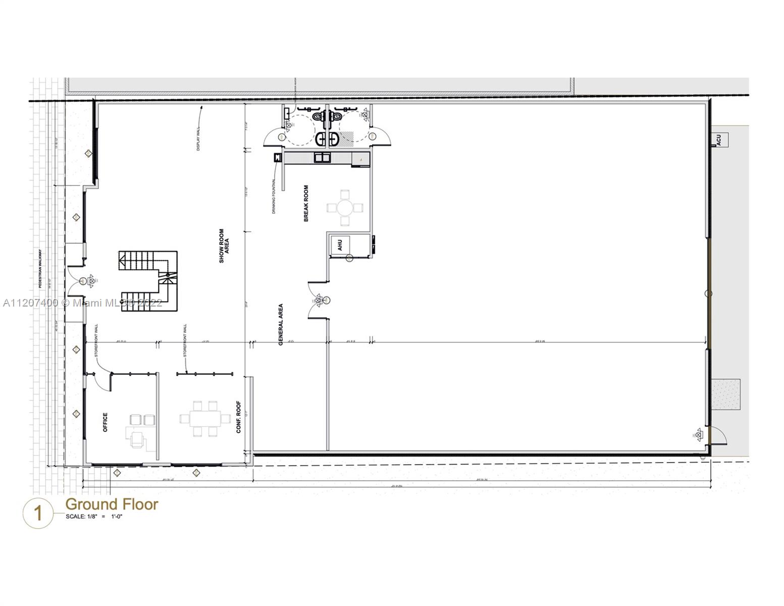
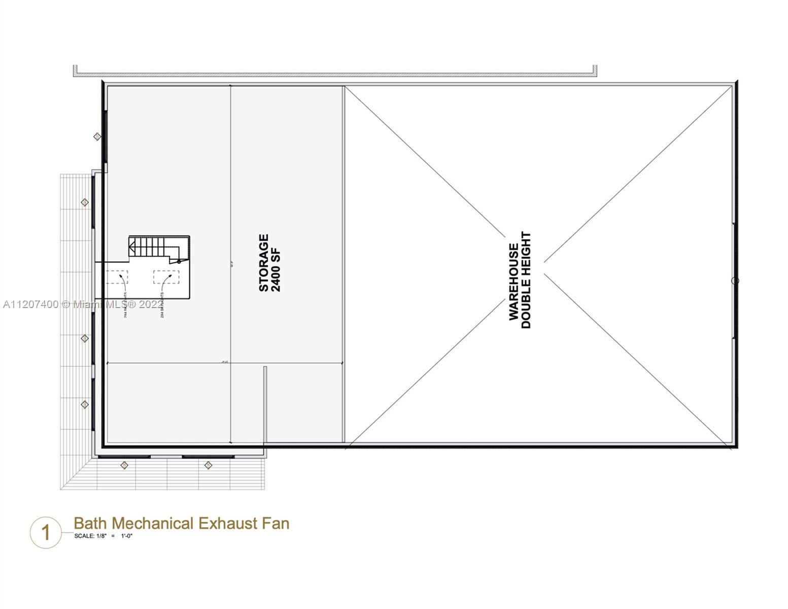
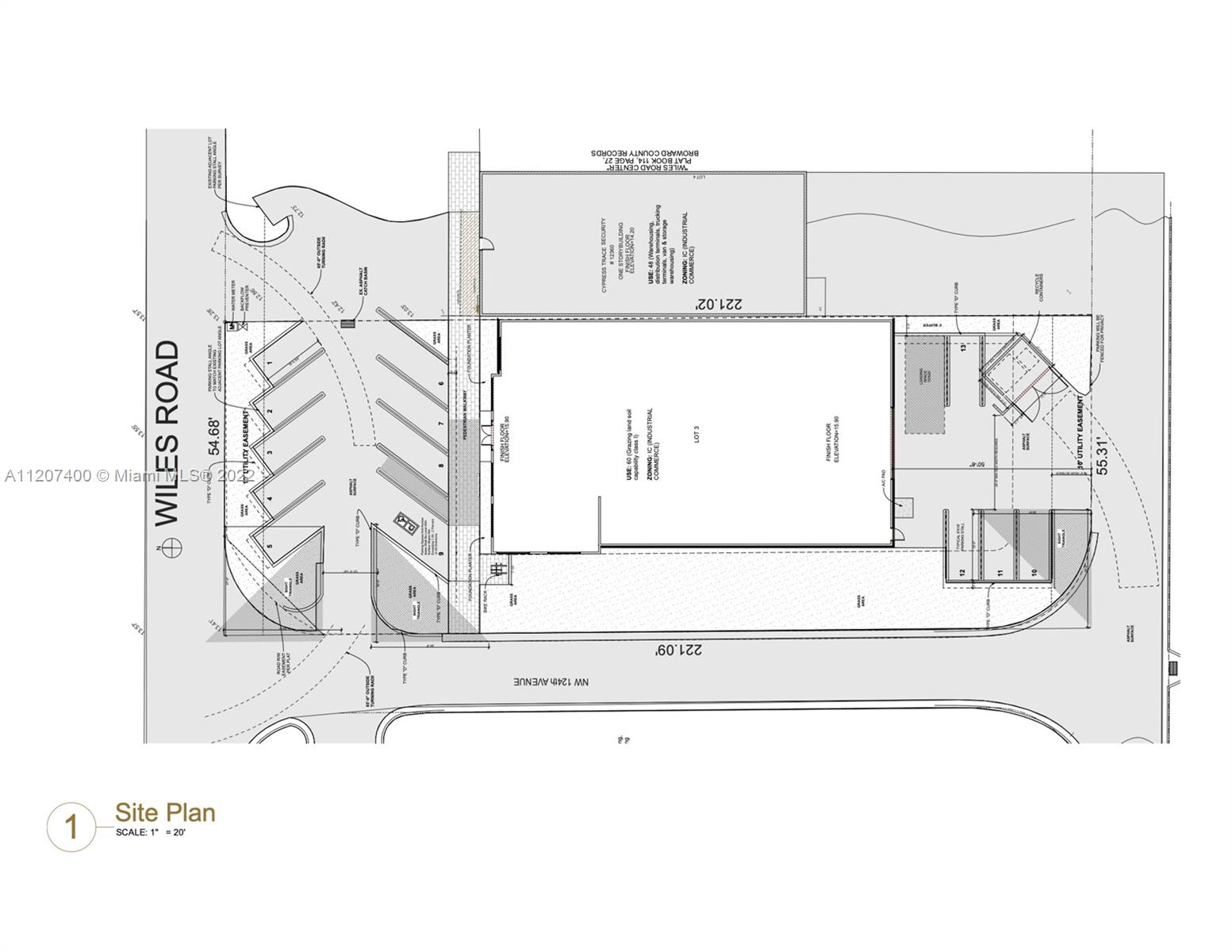
SITE PLAN APPROVED - Pre-Fabricated Steel building. 7,560 SF Interior. Exterior clad with finished corrugated metal panels that align to be continuous with roof. The building has been designed to house a showroom, conference room, office, kitchen, 2 ADA compliant bathrooms and a warehouse. The building will have a 2nd story mezzanine that will be used for storage. All openings indicated will be large missile impact rated windows and doors as approved by Miami-Dade standards. Parking is provided to comply with city requirements. The scope of work will include normal mechanical, electrical and plumbing. Flooring will be of a polished concrete throughout, except for the 2nd floor storage. That will be of a finished material. Ample vegetation is provided to comply with all city requirements.

Localización


Información requerida
Mila Bogatov
Mila Bogatov
Corredor Inmobiliario