Isles At Weston 171 40 B 5 bedroom Single Family House For Sale
4436 Laurel Pl, Weston, FL 33332

$517,500
Vendido
Mila Bogatov
Mila Bogatov
Corredor Inmobiliario

Detalles


  • Número MLS:A1856181
  • Tour virtual:
  • Precio: $515,000
  • Precio vendido: $517,500
  • Tamaño: 3290 pie² / 306 m²
  • Precio por Pie / Metro: $157 / $1,693
  • Habitaciones:5
  • Baños Completos:3
  • Medios Baños:1
  • Mantenimiento:$278
  • Impuesto anual:$8,586
  • Año de construcción:2005
  • Mascotas Permitidas:
  • Frente al agua:
  • Fecha de listado:October 15, 2013
  • Fecha Vendido: September 29, 2014
  • Días en el Mercado:348
  • Venta Corta:

Descripción


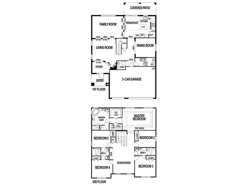
Back on the market as of 5/07/14. Price approved, only cash offers at full price. Live in one of the newest communities in Weston, in a grand 5-bedroom house in the Isles at Weston. 3-car garage. Foyer entrance. Huge Family Room. Formal Dinning and Living . Beautiful Lake view. 14x17 bonus room/landing upstairs and 5-bedrooms with 3 full bathrooms. Carpet throughout. TLC needed, but overall a great buy. Maintenance includes: basic cable, internet, alarm, and community gym access. A must see!

Características


  • Piso:Carpet, Tile
  • Característica Interior:BreakfastArea, DiningArea, SeparateFormalDiningRoom, EntranceFoyer, FirstFloorEntry, KitchenIsland, Pantry, SittingAreainMaster, UpperLevelMaster
  • Característica exterior:Porch, Patio, StormSecurityShutters
  • Frente al agua:LakeFront, Waterfront
Información requerida
Mila Bogatov
Mila Bogatov
Corredor Inmobiliario