Sumter Crossing 4 bedroom Single Family House For Sale
10561 Ne 104th Cir, Other, FL 34484

$1,249,900
Pendiente En venta
Mila Bogatov
Mila Bogatov
Corredor Inmobiliario

Detalles


  • Número MLS:A11921698
  • Tour virtual:
  • Precio: $1,249,900
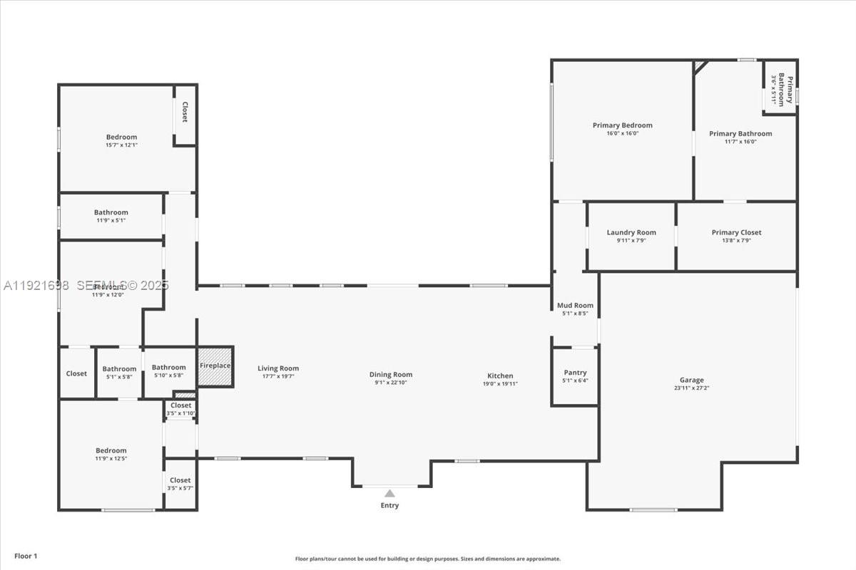
  • Tamaño: 3088 pie² / 287 m²
  • Precio por Pie / Metro: $405 / $4,357
  • Habitaciones:4
  • Baños Completos:3
  • Mantenimiento:$1,100
  • Impuesto anual:$5,161
  • Año de construcción:2023
  • Fecha de listado:December 2, 2025
  • Días en el Mercado:177

Descripción


Stunning custom block home on 5.12 acres in gated Sumter Crossing. Built in 2023 with 3,088 sq ft under air, this property offers privacy, efficiency, and high-end design. Features include 10 ft ceilings, 8 ft doors, LVP flooring, custom cabinetry, and a brick wood-burning fireplace with gas starter. The chef’s kitchen boasts quartz countertops, a 48-inch gas range, wine bar, large island, and a walk-in pantry with coffee bar. Outdoor living includes a full summer kitchen on the covered back porch with brick pavers, and a separate brick-paver front porch offering a warm entry. Fully fenced acreage (2023) with equine and bovine allowed. High-efficiency construction includes Icynene attic spray foam, block with injected foam, dual gas tankless water heaters, and a 24-KW Generac whole-home generator powered by a buried 1,000-gallon propane tank. Low electric bill and well/septic for added savings. Oversized 2.5-car garage with epoxy floors, two EV charging pre-wires, mechanical room above garage, second attic access, and a 100-amp junction box ready for a barn or guest house. Additional features: salt-filtration water softener, built-in bookshelves, custom cabinetry, mudroom bench, and smart-home systems. AC has 3 zones with a 5-ton unit. Exceptional estate offering space, efficiency, and luxury.

Características


  • Piso:Carpet, Vinyl
  • Característica Interior:BedroomOnMainLevel, DualSinks, EatInKitchen, FrenchDoorsAtriumDoors, FirstFloorEntry, Fireplace, MainLevelPrimary, Pantry, SeparateShower, WalkInClosets
  • Característica exterior:Barbecue, Fence, Porch

Localización


Información requerida
Mila Bogatov
Mila Bogatov
Corredor Inmobiliario