Four Way Lodge Estates 4 bedroom Single Family House For Sale
3765 Carmen Ct, Coconut Grove, FL 33133

$2,850,000
Vendido
Mila Bogatov
Mila Bogatov
Corredor Inmobiliario

Detalles


  • Número MLS:A11914103
  • Tour virtual:
  • Precio: $3,350,000
  • Precio vendido: $2,850,000
  • Tamaño: 2622 pie² / 244 m²
  • Precio por Pie / Metro: $1,087 / $11,700
  • Habitaciones:4
  • Baños Completos:3
  • Impuesto anual:$31,160
  • Año de construcción:1936
  • Fecha de listado:November 14, 2025
  • Fecha Vendido: January 27, 2026
  • Días en el Mercado:73

Descripción


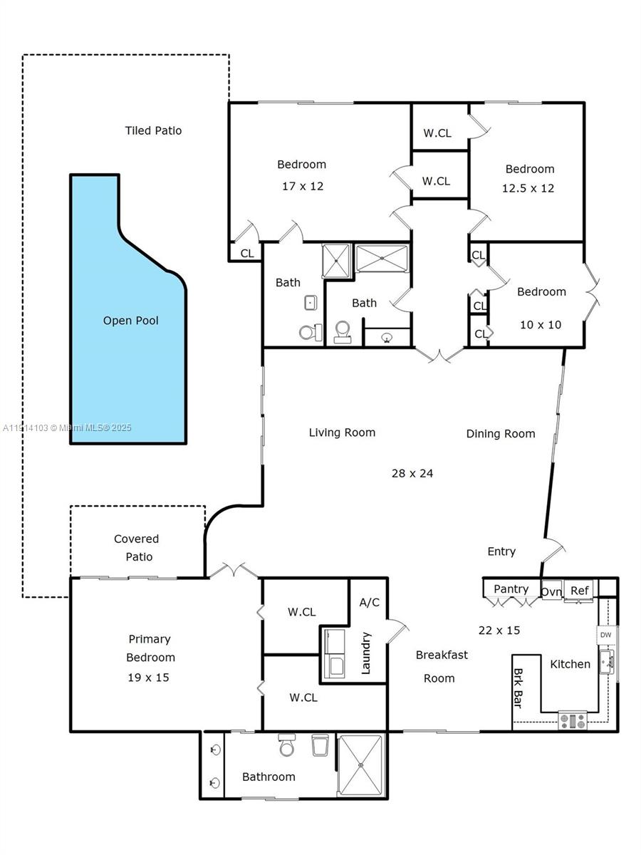
Tucked within the guard-gated enclave of Four Way Lodge in South Coconut Grove lies a charming 4-bedroom, 3-bath bungalow. Nestled on a quiet cul-de-sac, the home offers privacy and peace of mind in Flood Zone X—no flood insurance required. Inside, the updated eat-in kitchen and stylishly renovated baths make this residence truly move-in ready. A newer roof, fresh paint, and inviting pool complement the delightful backyard—perfect for relaxation or play. The home offers generous storage throughout, including his-and-hers walk-in closets in the primary suite, plus a convenient laundry room just off the kitchen. Ideally located near top schools, houses of worship, and Coconut Grove’s best shopping and dining, this home is a true gem. Community boat basin w/ocean access. A Very Special Home.

Características


  • Piso:Tile
  • Característica Interior:BreakfastBar, Bidet, BuiltInFeatures, BedroomOnMainLevel, BreakfastArea, ClosetCabinetry, EatInKitchen, FirstFloorEntry, LivingDiningRoom, SplitBedrooms, WalkInClosets
  • Característica exterior:Awnings, Fence, Lighting, StormSecurityShutters

Localización


Información requerida
Mila Bogatov
Mila Bogatov
Corredor Inmobiliario