Tamiami Place Plan 2 2 bedroom Single Family House For Sale
924 El Rado St, Coral Gables, FL 33134

$910,000
Vendido
Mila Bogatov
Mila Bogatov
Corredor Inmobiliario

Detalles


  • Número MLS:A11904488
  • Tour virtual:
  • Precio: $995,000
  • Precio vendido: $910,000
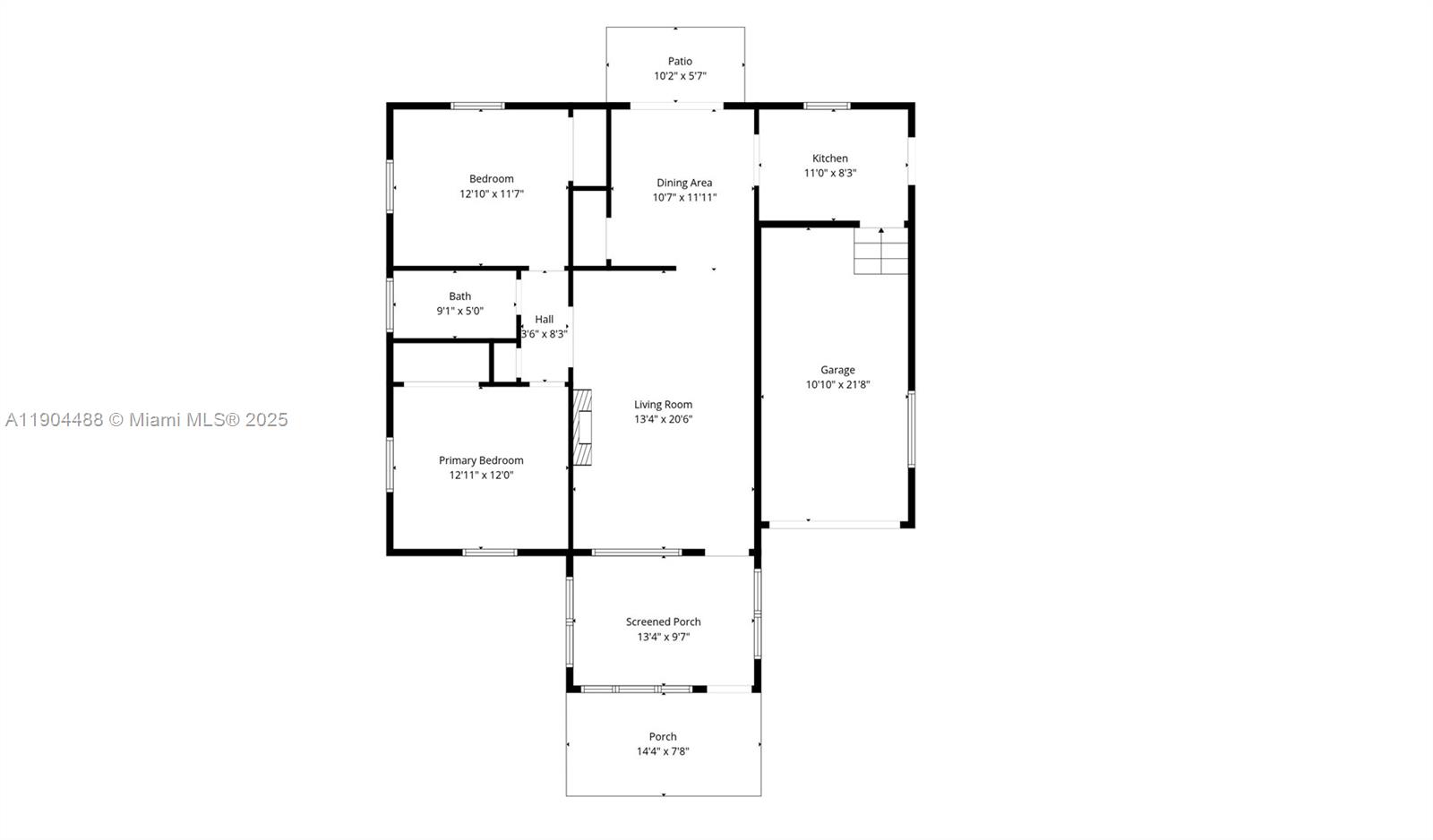
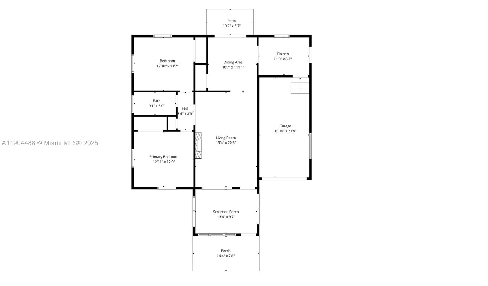
  • Tamaño: 1181 pie² / 110 m²
  • Precio por Pie / Metro: $771 / $8,294
  • Habitaciones:2
  • Baños Completos:1
  • Impuesto anual:$4,193
  • Año de construcción:1950
  • Fecha de listado:October 30, 2025
  • Fecha Vendido: December 11, 2025
  • Días en el Mercado:41

Descripción


Nestled on one of North Gables’ quietest streets, this classic 2-bedroom, 1-bath home captures timeless Coral Gables charm. Overlooking Lisbon Park, it sits on a 6,773 sq. ft. lot surrounded by mature trees and natural light, offering rare privacy in this coveted area. A fully paved driveway enhances its curb appeal, while the bright sunroom opens to a warm living space with original pine floors and a cozy fireplace. The backyard offers room to expand, add a pool, or design your ideal outdoor retreat. Additional features include a 1-car garage and a prime location close to everything Coral Gables has to offer.

Características


  • Piso:Hardwood, Wood
  • Característica Interior:BedroomOnMainLevel, FirstFloorEntry
  • Característica exterior:Patio, StormSecurityShutters

Localización


Información requerida
Mila Bogatov
Mila Bogatov
Corredor Inmobiliario