Sector 6 4 bedroom Single Family House For Sale
1204 Bayview Cir, Weston, FL 33326

$775,000
Vendido
Mila Bogatov
Mila Bogatov
Corredor Inmobiliario

Detalles


  • Número MLS:A11840164
  • Tour virtual:
  • Precio: $799,900
  • Precio vendido: $775,000
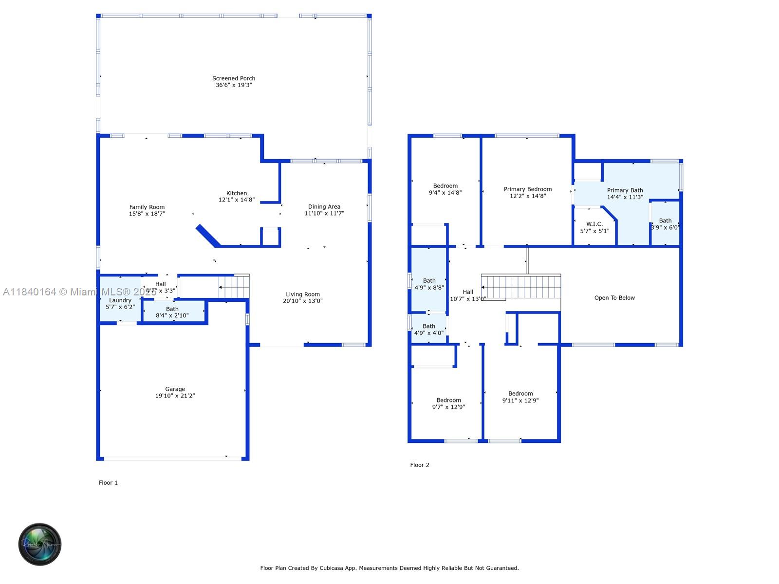
  • Tamaño: 2070 pie² / 192 m²
  • Precio por Pie / Metro: $374 / $4,030
  • Habitaciones:4
  • Baños Completos:2
  • Medios Baños:1
  • Mantenimiento:$138
  • Impuesto anual:$10,318
  • Año de construcción:1991
  • Frente al agua:
  • Fecha de listado:July 15, 2025
  • Fecha Vendido: October 20, 2025
  • Días en el Mercado:96

Descripción


Welcome to this beautiful 4BR/2.5BA home in the sought-after Hibiscus Island community in Weston, offering serene lake views from the large screened-in lanai. The spacious primary suite features charming farmhouse doors leading to a fully renovated bathroom with dual sinks, a soaking tub, separate shower, & two closets. All bedrooms are located upstairs with two full baths, while a half bath is conveniently situated downstairs. Extensive updates include a NEW KITCHEN (2022), IMPACT GARAGE DOOR (2023), NEW A/C (2024), NEW ELECTRICAL PANEL, New Light Fixtures throughout, New Stainless Steel Appliances, NEW LAMINATE FLOORING on the second floor & the garage is equipped with EV charging. Zoned for all “A” rated schools, close to shops, dining, top rated hospitals and minutes to major highways.

Características


  • Piso:CeramicTile, Hardwood, Wood
  • Característica Interior:BreakfastBar, BreakfastArea, DualSinks, FrenchDoorsAtriumDoors, FirstFloorEntry, LivingDiningRoom, SeparateShower, UpperLevelPrimary
  • Característica exterior:EnclosedPorch, Patio, RoomForPool, StormSecurityShutters
  • Frente al agua:LakeFront, LakePrivileges

Localización


Información requerida
Mila Bogatov
Mila Bogatov
Corredor Inmobiliario