Country S Point 4 bedroom Single Family House For Sale
5919 Nw 59th Ave, Parkland, FL 33067

$695,000
Vendido
Mila Bogatov
Mila Bogatov
Corredor Inmobiliario

Detalles


  • Número MLS:A11840564
  • Tour virtual:
  • Precio: $699,500
  • Precio vendido: $695,000
  • Tamaño: 2579 pie² / 240 m²
  • Precio por Pie / Metro: $269 / $2,901
  • Habitaciones:4
  • Baños Completos:2
  • Medios Baños:1
  • Impuesto anual:$12,834
  • Año de construcción:1993
  • Frente al agua:
  • Fecha de listado:July 14, 2025
  • Fecha Vendido: May 21, 2026
  • Días en el Mercado:310

Descripción


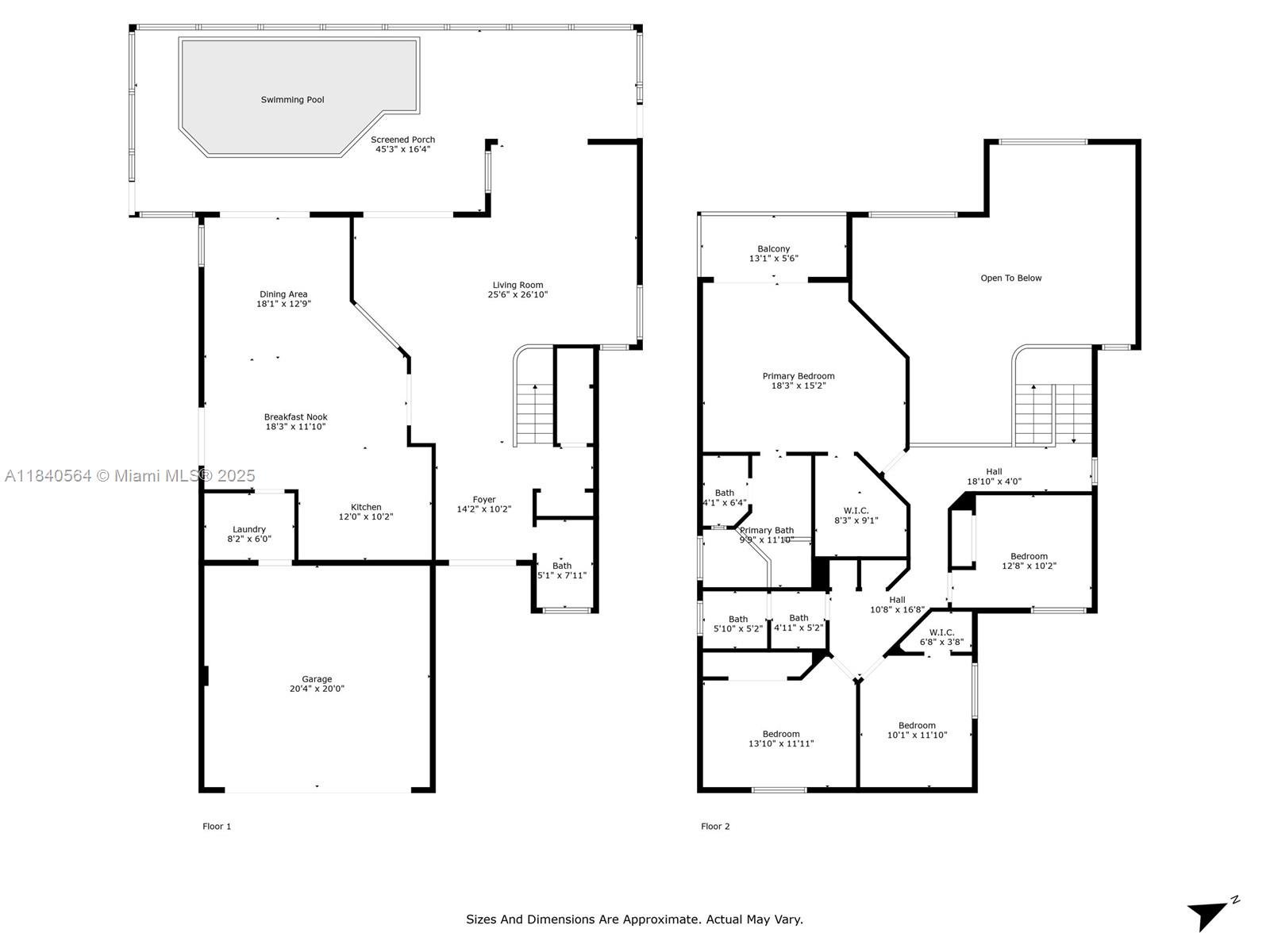
This house is situated in a tree-lined street in a spectacular neighborhood. The property consists of 4 bedrooms, 2.5 baths, 2718 total square feet of living space, on a .1466 lot. The Home features Hurricane impact windows and sliders. Double entry doors, Stainless Steel appliances, Screened pool and patio, Master bedroom Balcony, Home has a fresh new coat of paint, and awnings. The property is located within minutes of shopping, dinning and with easy access to major roadways.

Características


  • Piso:CeramicTile
  • Característica Interior:FamilyDiningRoom, FirstFloorEntry, UpperLevelPrimary
  • Característica exterior:Awnings, Fence, SecurityHighImpactDoors
  • Frente al agua:CanalAccess

Localización


Información requerida
Mila Bogatov
Mila Bogatov
Corredor Inmobiliario