Sector 3 Parcels C D E 4 bedroom Single Family House For Sale
1070 Briar Ridge Rd, Weston, FL 33327

$775,000
Vendido
Mila Bogatov
Mila Bogatov
Corredor Inmobiliario

Detalles


  • Número MLS:A11802389
  • Tour virtual:
  • Precio: $775,000
  • Precio vendido: $775,000
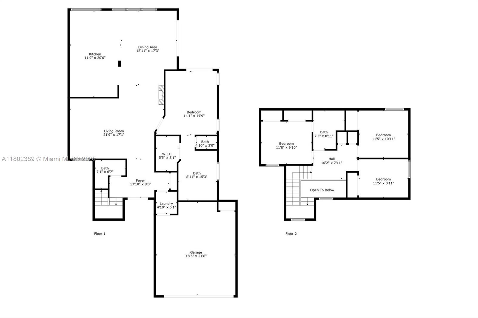
  • Tamaño: 1904 pie² / 177 m²
  • Precio por Pie / Metro: $407 / $4,381
  • Habitaciones:4
  • Baños Completos:2
  • Medios Baños:1
  • Mantenimiento:$490
  • Impuesto anual:$6,714
  • Año de construcción:1996
  • Fecha de listado:May 27, 2025
  • Fecha Vendido: October 15, 2025
  • Días en el Mercado:140

Descripción


Beautiful 4-bed, 2.5-bath home in The Falls, Weston, nestled on a quiet cul-de-sac in a guard-gated community. This updated home also has a Roof & AC approximately 6.5 years new. Master suite on the first floor features a custom closet & upgraded bath with large shower and dual sinks. Upstairs offers three spacious bedrooms and a fully renovated bathroom. Open floor plan with high ceilings & abundant natural light. Updated kitchen with updated appliances, wood cabinets, and granite countertops. Extended covered patio perfect for entertaining, with plenty of space for a pool, gazebo and more. Tile flooring on the first floor, vinyl on stairs and second floor. Additional features include newer roof, AC, recessed lighting, updated half bath downstairs, laundry room under air, & 2-car garage.

Características


  • Piso:Tile, Vinyl
  • Característica Interior:BuiltInFeatures, BedroomOnMainLevel, BreakfastArea, ClosetCabinetry, DualSinks, EatInKitchen, FirstFloorEntry, LivingDiningRoom, MainLevelPrimary, WalkInClosets, Attic
  • Característica exterior:Lighting, Patio, RoomForPool, SecurityHighImpactDoors, StormSecurityShutters

Localización


Información requerida
Mila Bogatov
Mila Bogatov
Corredor Inmobiliario