Coral Gables Sec B 2 bedroom Single Family House For Sale
605 Navarre Ave, Coral Gables, FL 33134

$1,250,000
Vendido
Mila Bogatov
Mila Bogatov
Corredor Inmobiliario

Detalles


  • Número MLS:A11719240
  • Tour virtual:
  • Precio: $1,390,000
  • Precio vendido: $1,250,000
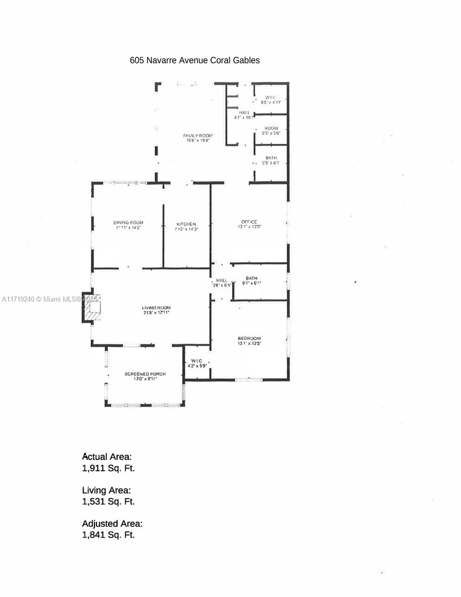
  • Tamaño: 1531 pie² / 142 m²
  • Precio por Pie / Metro: $816 / $8,788
  • Habitaciones:2
  • Baños Completos:2
  • Impuesto anual:$15,080
  • Año de construcción:1925
  • Fecha de listado:January 9, 2025
  • Fecha Vendido: March 14, 2025
  • Días en el Mercado:63

Descripción


Explore the charm of this old Spanish hacienda on a spacious 5,650 square foot lot (50 x 113). With approximately 1,841 square feet of living space, this home originally featured two bedrooms and one bath, built-in 1925 with a 1-car garage. A mid-1990s addition includes a large family room, full bath, laundry room, and a sizable closet, which can easily be converted into a third bedroom or a primary suite. The inviting front porch showcases a beamed ceiling and original multi-tile floor. Inside, the spacious living room features a fireplace and hardwood floors, while two bedrooms and a bath lie to the east, joined by a formal dining room and modern kitchen. The family room opens to a lovely backyard, complemented by a detached garage and ample brick driveway.

Características


  • Piso:Hardwood, Tile, Wood
  • Característica Interior:BedroomOnMainLevel, DiningArea, SeparateFormalDiningRoom, EntranceFoyer, FrenchDoorsAtriumDoors, FirstFloorEntry, Fireplace, WalkInClosets
  • Característica exterior:Awnings, Fence, Lighting, Patio, StormSecurityShutters

Localización


Información requerida
Mila Bogatov
Mila Bogatov
Corredor Inmobiliario