Coral Gables Country Club 3 bedroom Single Family House For Sale
4275 University Dr, Coral Gables, FL 33146

$2,675,000
Vendido
Mila Bogatov
Mila Bogatov
Corredor Inmobiliario

Detalles


  • Número MLS:A11576759
  • Tour virtual:
  • Precio: $2,750,000
  • Precio vendido: $2,675,000
  • Tamaño: 2512 pie² / 233 m²
  • Precio por Pie / Metro: $1,065 / $11,462
  • Habitaciones:3
  • Baños Completos:3
  • Impuesto anual:$11,611
  • Año de construcción:1960
  • Frente al agua:
  • Fecha de listado:April 29, 2024
  • Fecha Vendido: July 8, 2024
  • Días en el Mercado:69

Descripción


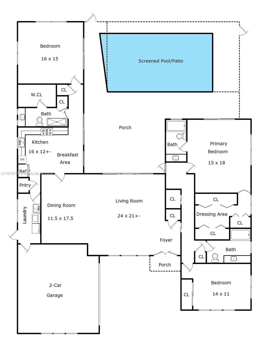
Dreaming about waterfront living in Coral Gables? The City Beautiful has many picturesque streets, and University Drive is among the favorites. Centrally located near Riviera country club, renowned golf courses, the University of Miami, and Miracle Mile, this over 11k sq ft lot on the waterway is full of possibility. This classic 3 bedroom, 3 bath home needs a total makeover but has really good bones and great potential. The split floor plan showcases generous size rooms throughout. Please see attached floorplan. The property sits high on the Coral Gables waterway in highly desirable Flood Zone X. The tile roof is only 10 years old. Make this home your own Very Special Home.

Características


  • Piso:Carpet, Marble
  • Característica Interior:BuiltinFeatures, BedroomonMainLevel, ClosetCabinetry, DiningArea, SeparateFormalDiningRoom, EntranceFoyer, FirstFloorEntry, SplitBedrooms, WalkInClosets
  • Característica exterior:Fence, Lighting, StormSecurityShutters
  • Frente al agua:CanalFront, NavigableWater, OceanAccess

Localización


Información requerida
Mila Bogatov
Mila Bogatov
Corredor Inmobiliario