Oakridge Estates Sec 3 6 bedroom Single Family House For Sale
11800 Sw 70th Ave, Pinecrest, FL 33156

$3,875,000
Vendido
Mila Bogatov
Mila Bogatov
Corredor Inmobiliario

Detalles


  • Número MLS:A11574411
  • Tour virtual:
  • Precio: $3,950,000
  • Precio vendido: $3,875,000
  • Tamaño: 5118 pie² / 475 m²
  • Precio por Pie / Metro: $757 / $8,150
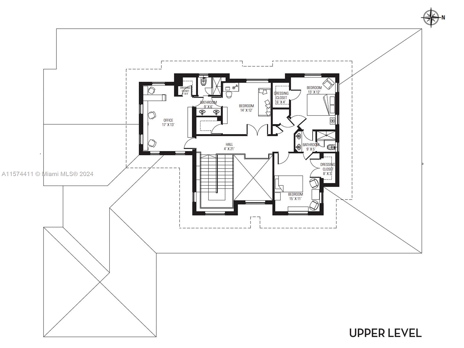
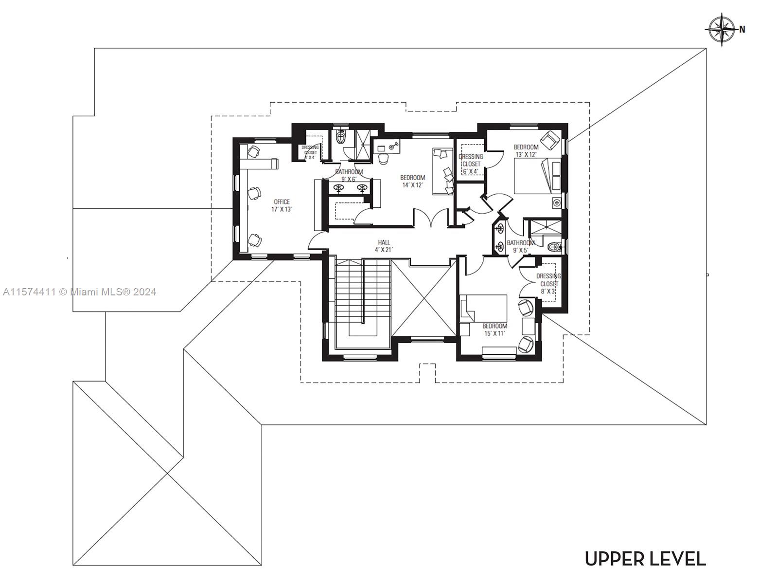
  • Habitaciones:6
  • Baños Completos:5
  • Medios Baños:1
  • Impuesto anual:$38,693
  • Año de construcción:2004
  • Fecha de listado:April 23, 2024
  • Fecha Vendido: November 1, 2024
  • Días en el Mercado:191

Descripción


A special Key West estate on a beautiful canal-front block in the heart of Pinecrest. This home exudes both luxury and warmth with a thoughtful floor plan, soaring ceilings, abundant natural light, and tasteful finishes indoors and out. The heart of the home is the recently renovated kitchen with gas range, wine fridge, breakfast area, and picture window out to your backyard oasis. Enjoy the breeze on your wraparound front and back verandas, grill at the new summer kitchen, or splash in the sparkling pool. Oversized primary suite offers two walk-in closets, double vanities, and standalone tub. Stone and hardwood floors throughout, plantation shutters, Chicago brick driveway, and two-car garage. Perfectly located near top private and public schools. A home like this rarely comes along!

Características


  • Piso:Hardwood, Marble, Wood
  • Característica Interior:Bidet, BuiltInFeatures, BedroomOnMainLevel, BreakfastArea, ClosetCabinetry, DiningArea, SeparateFormalDiningRoom, DualSinks, EntranceFoyer, EatInKitchen, FrenchDoorsAtriumDoors, FirstFloorEntry, HighCeilings, JettedTub, KitchenIsland, MainLevelPrimary, Pantry, SeparateShower, Bar, WalkInClosets
  • Característica exterior:Balcony, Fence, SecurityHighImpactDoors, Lighting, Porch

Tour virtual


Localización


Información requerida
Mila Bogatov
Mila Bogatov
Corredor Inmobiliario