Cg Riviera Sec 3 Rev 4 bedroom Single Family House For Sale
5363 Orduna Dr, Coral Gables, FL 33146

$4,795,000
Vendido
Mila Bogatov
Mila Bogatov
Corredor Inmobiliario

Detalles


  • Número MLS:A11444582
  • Tour virtual:
  • Precio: $4,995,000
  • Precio vendido: $4,795,000
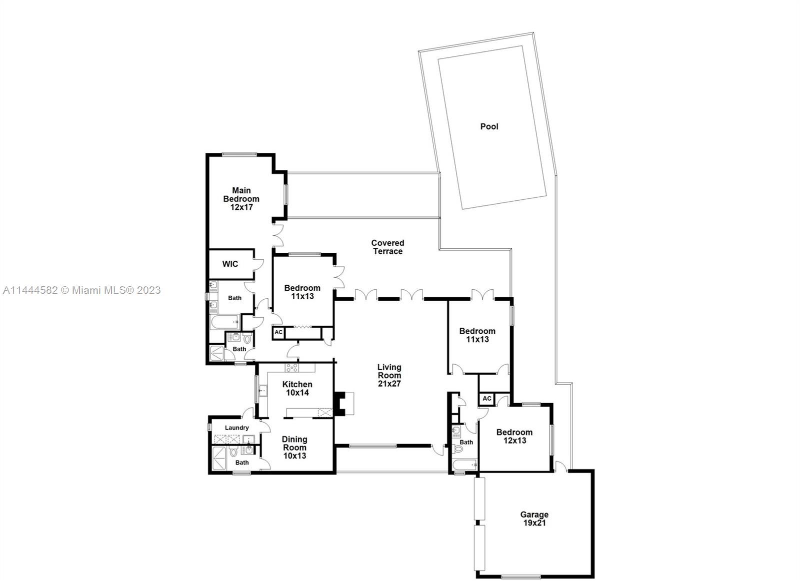
  • Tamaño: 2366 pie² / 220 m²
  • Precio por Pie / Metro: $2,027 / $21,814
  • Habitaciones:4
  • Baños Completos:4
  • Impuesto anual:$9,112
  • Año de construcción:1952
  • Frente al agua:
  • Fecha de listado:August 30, 2023
  • Fecha Vendido: October 2, 2023
  • Días en el Mercado:32

Descripción


Welcome to this 4 BR, 4 BA boater’s dream home prominently situated on the Coral Gables waterway. This gracious property features 75 ft of water frontage, private dock & boat lift, providing seamless navigation under two high bridges to the open water. Step inside the 2,646 sf house & discover a classic floor plan with split bedrooms, eat-in kitchen & spacious living spaces that open to the outside through sets of French doors. Outdoor living is further enhanced with a 20x40 foot pool, a deep covered patio and a sprawling lawn on a 15,300 sf lot which is elevated high above the canal. Enjoy living in an ideal location w/ easy access to the vibrant amenities of South Miami, the cultural offerings of the University of Miami, & prime water access & views!

Características


  • Piso:Carpet, Tile
  • Característica Interior:Bidet, BedroomonMainLevel, DualSinks, EatinKitchen, FrenchDoorsAtriumDoors, FirstFloorEntry, Fireplace, MainLevelPrimary, Pantry, WalkInClosets
  • Característica exterior:Fence, Porch, Patio, StormSecurityShutters
  • Frente al agua:CanalFront, NavigableWater, OceanAccess

Localización


Información requerida
Mila Bogatov
Mila Bogatov
Corredor Inmobiliario