Nova Estates 4 bedroom Single Family House For Sale
4770 Sw 57th Ter, Davie, FL 33314

$680,000
Vendido
Mila Bogatov
Mila Bogatov
Corredor Inmobiliario

Detalles


  • Número MLS:A11161401
  • Precio: $649,900
  • Precio vendido: $680,000
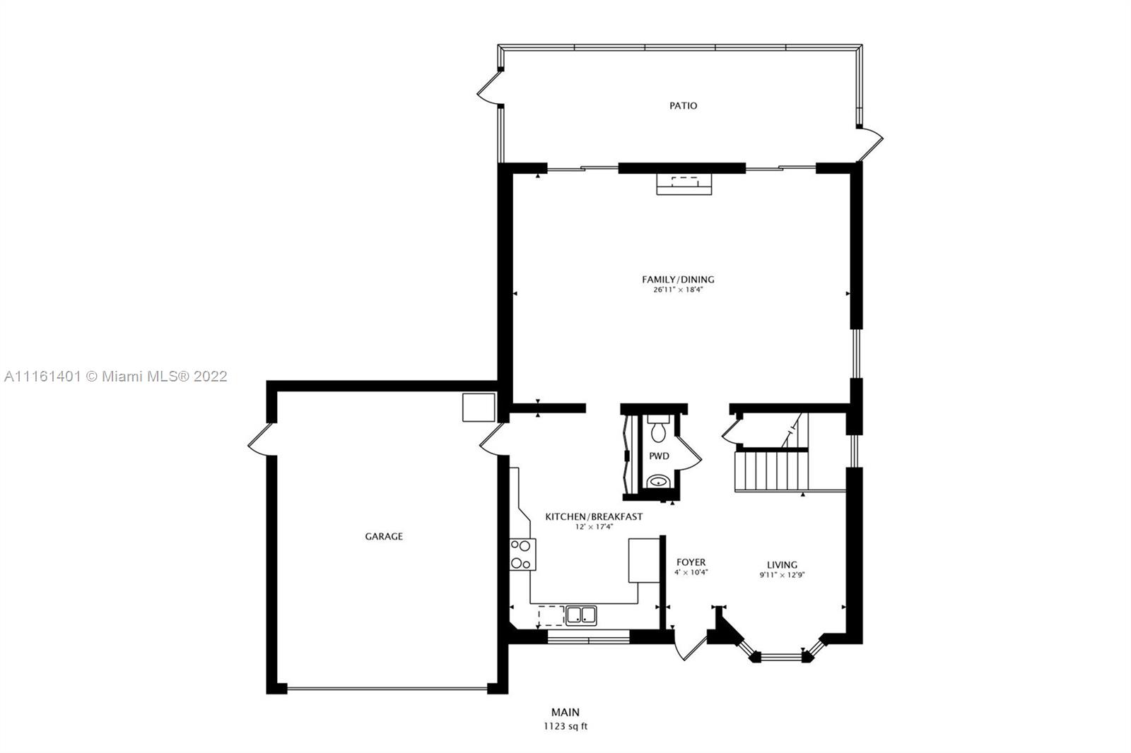
  • Tamaño: 2142 pie² / 199 m²
  • Precio por Pie / Metro: $317 / $3,417
  • Habitaciones:4
  • Baños Completos:2
  • Medios Baños:1
  • Mantenimiento:$165
  • Impuesto anual:$4,513
  • Año de construcción:1991
  • Frente al agua:
  • Fecha de listado:February 15, 2022
  • Fecha Vendido: March 28, 2022
  • Días en el Mercado:40

Descripción


RARE FIND!Charming 4/2.5 Lakefront Pool home in the sought community of Country Homes.Located in a cul de sac with extra privacy & guest parking.Originally,this home was builder's and is one of the 3 largest lots.This home features impact windows & doors, a kitchen with wood cabinetry, Quartz counter tops and SS appliances,adjacent breakfast area and huge pantry. Fine crown moldings and chair rails finishes throughout. Spacious master bedroom with walk in closet. Additional features and updates:*freshly painted exterior*updated laundry room*new closet doors*exterior landscape lighting and much more.This home has been meticulously maintained.Enjoy relaxing and entertaining in a backyard paradise.Bring your boat. Low HOA-$165 a year. Near major highways.Priced aggressively! Will not last.

Características


  • Piso:Tile, Wood
  • Característica Interior:BreakfastArea, EntranceFoyer, FrenchDoorsAtriumDoors, FirstFloorEntry, Fireplace, Pantry, UpperLevelMaster, WalkInClosets, CentralVacuum
  • Característica exterior:Deck, EnclosedPorch, Fence, SecurityHighImpactDoors, Lighting
  • Frente al agua:LakeFront

Localización


Información requerida
Mila Bogatov
Mila Bogatov
Corredor Inmobiliario