Country III 4 bedroom Single Family House For Sale
10511 Sw 50th St, Cooper City, FL 33328

$450,000
Vendido
Mila Bogatov
Mila Bogatov
Corredor Inmobiliario

Detalles


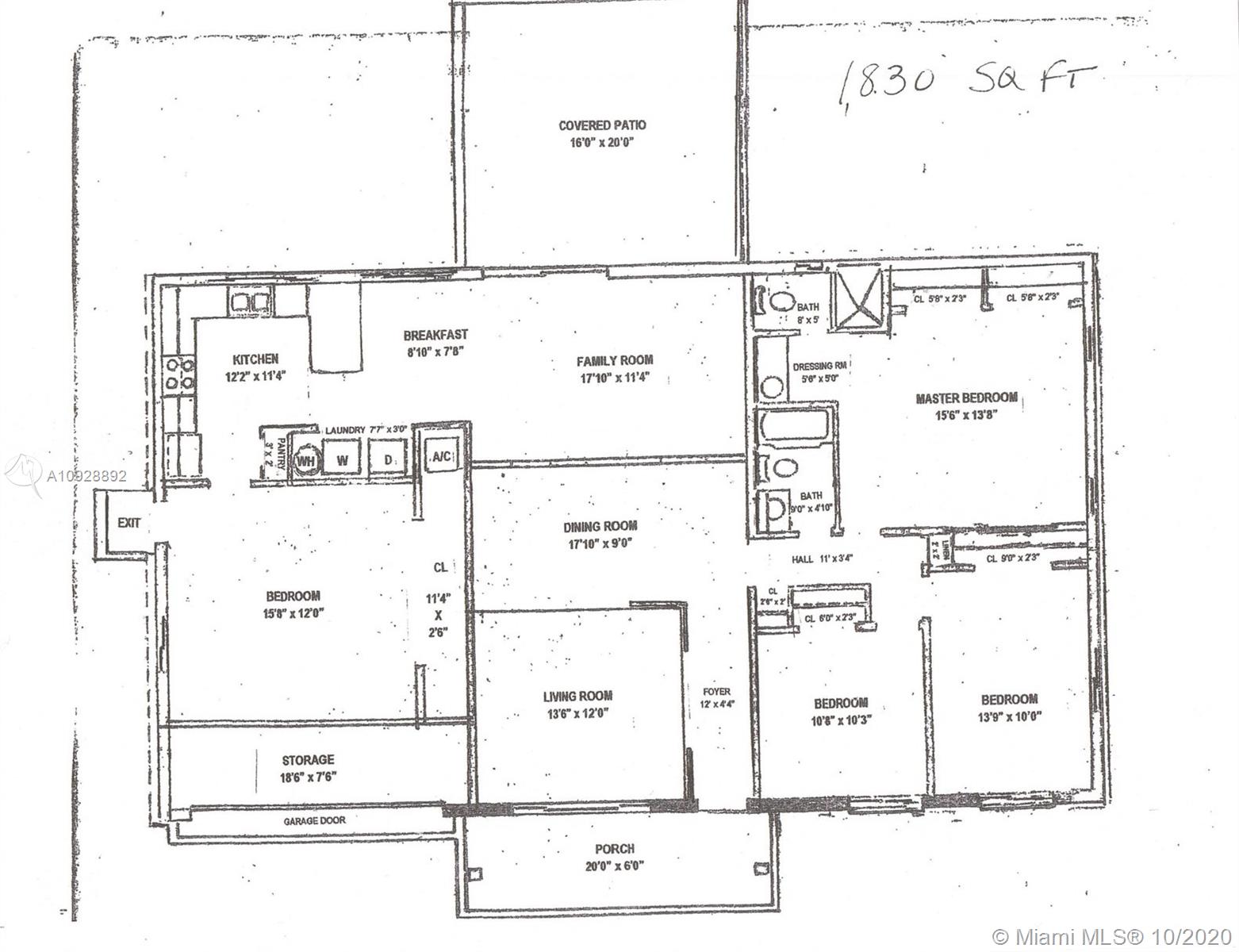
  • Número MLS:A10928892
  • Tour virtual:
  • Precio: $430,000
  • Precio vendido: $450,000
  • Tamaño: 1640 pie² / 152 m²
  • Precio por Pie / Metro: $274 / $2,954
  • Habitaciones:4
  • Baños Completos:2
  • Impuesto anual:$2,345
  • Año de construcción:1978
  • Fecha de listado:October 9, 2020
  • Fecha Vendido: November 30, 2020
  • Días en el Mercado:51

Descripción


Perfectly maintained 4 bed 2 bath home in the heart of Cooper City with TOP Rated schools in the area. This home has been updated from kitchen cabinets & counter tops to the bathroom. Very well maintained by original owners as you will see upon your first visit. Large screen enclosure was added for outside entertainment for family & friends. Plenty of room to add a pool in this spacious open backyard. Freshly paved driveway, which has plenty of parking. Remaining termite warranty & AC contract can be transferred to the new buyer. Seller has full set of shutters for your insurance discount. Walking distance to the park with plenty to do with kids and exercise. Close to restaurants, shopping, police/fire, and more. Home is a total of 1,830 sqft under air as per attached floor plan.

Características


  • Piso:Tile
  • Característica Interior:BedroomonMainLevel, BreakfastArea, EntranceFoyer, EatinKitchen, FirstFloorEntry, LivingDiningRoom, MainLevelMaster, Pantry
  • Característica exterior:EnclosedPorch, Fence, Lighting, Patio, RoomForPool, StormSecurityShutters

Localización


Información requerida
Mila Bogatov
Mila Bogatov
Corredor Inmobiliario