Devonwood 4 bedroom Single Family House For Sale
6540 Sw 134th Dr, Pinecrest, FL 33156

$750,000
Vendido
Mila Bogatov
Mila Bogatov
Corredor Inmobiliario

Detalles


  • Número MLS:A10862618
  • Tour virtual:
  • Precio: $825,000
  • Precio vendido: $750,000
  • Tamaño: 2396 pie² / 223 m²
  • Precio por Pie / Metro: $313 / $3,369
  • Habitaciones:4
  • Baños Completos:3
  • Impuesto anual:$10,874
  • Año de construcción:1962
  • Fecha de listado:May 20, 2020
  • Fecha Vendido: July 31, 2020
  • Días en el Mercado:71

Descripción


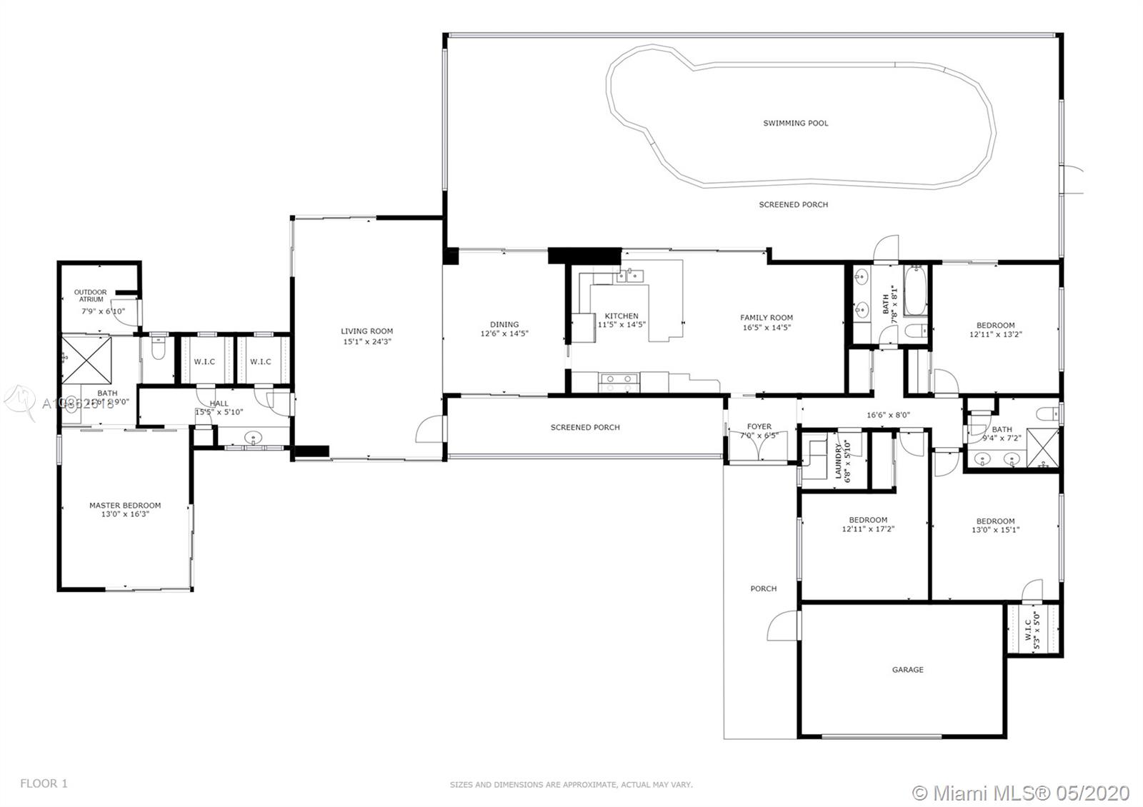
Jewel property in a natural hammock setting in the Devonwood neighborhood of Pinecrest. This was the very first lot/house selected / developed for its wonderful native landscape with rare plants, trees, and coral rock formations including a solution hole serving as a natural playground. Maintained by its original owners, the home is ready for personalization and has a spacious layout & split bedroom plan -SEE FLOOR PLAN IN PHOTOS. Roof is 4 years old. Master suite is flanked by windows, reminiscent of a tree house overlooking the garden. Spacious rooms, including formal living & dining rooms and kitchen with eat-in counter open to family room -All have sliding glass doors cascading over a great screened patio-pool area. Indoor laundry room, spacious 2 car garage and much, much more.

Características


  • Piso:Carpet, Terrazzo, Tile
  • Característica Interior:BreakfastBar, BedroomonMainLevel, DiningArea, SeparateFormalDiningRoom, EntranceFoyer, FirstFloorEntry, LivingDiningRoom, MainLevelMaster, SplitBedrooms, WalkInClosets, Atrium
  • Característica exterior:Lighting, Awnings

Localización


Información requerida
Mila Bogatov
Mila Bogatov
Corredor Inmobiliario