Coral Gables C C Sec 3 5 bedroom Single Family House For Sale
908 Tendilla Ave, Coral Gables, FL 33134

$1,900,000
Vendido
Mila Bogatov
Mila Bogatov
Corredor Inmobiliario

Detalles


  • Número MLS:A10458273
  • Tour virtual:
  • Precio: $1,999,000
  • Precio vendido: $1,900,000
  • Tamaño: 4234 pie² / 393 m²
  • Precio por Pie / Metro: $449 / $4,830
  • Habitaciones:5
  • Baños Completos:4
  • Impuesto anual:$21,318
  • Año de construcción:1926
  • Mascotas Permitidas:
  • Fecha de listado:April 25, 2018
  • Fecha Vendido: August 15, 2018
  • Días en el Mercado:111

Descripción


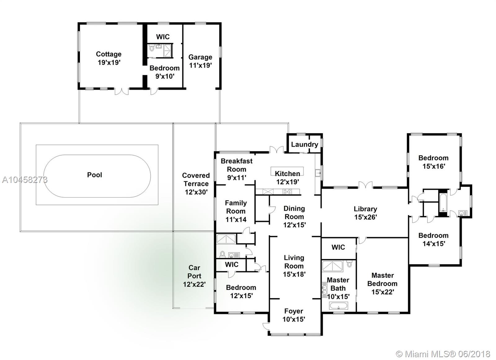
Be amazed by this magical walled, gated, & completely updated Old Spanish on one of the best streets in the Golden Triangle. 18,548sf lot has new pool w/ lounging area, lovely trellis, amazing treehouse, & Biltmore views. Enter to a large, light-filled foyer that opens to the formal living room w/ fireplace & wood floors & then the formal dining rm beyond. Updated Trimline kitchen w/ German Bio Glass counters, high end appliances & beautiful breakfast rm. The master BR addition has a stunning new BA featuring hand-made Walker Zanger tile, soaking tub, & shower. In addition to the 4 BR & 3 BA in the main house, there is also a 1 BR/1 BA guest house. Wonderful spaces, high ceilings, impact windows through most, wood beamed ceilings & built-ins in the fam rm, & very private garden.

Características


  • Piso:Wood
  • Característica Interior:BuiltinFeatures, BedroomonMainLevel, BreakfastArea, ConvertibleBedroom, DiningArea, SeparateFormalDiningRoom, EatinKitchen, FirstFloorEntry, Fireplace, MainLevelMaster, SittingAreainMaster, WalkInClosets
  • Característica exterior:Fence, SecurityHighImpactDoors, Lighting, Patio
Información requerida
Mila Bogatov
Mila Bogatov
Corredor Inmobiliario