Normandy Beach 3 bedroom Single Family House For Sale
8875 Emerson Avenue, Surfside, FL 33154

$620,000
Vendido
Mila Bogatov
Mila Bogatov
Corredor Inmobiliario

Detalles


  • Número MLS:A10229881
  • Tour virtual:
  • Precio: $685,000
  • Precio vendido: $620,000
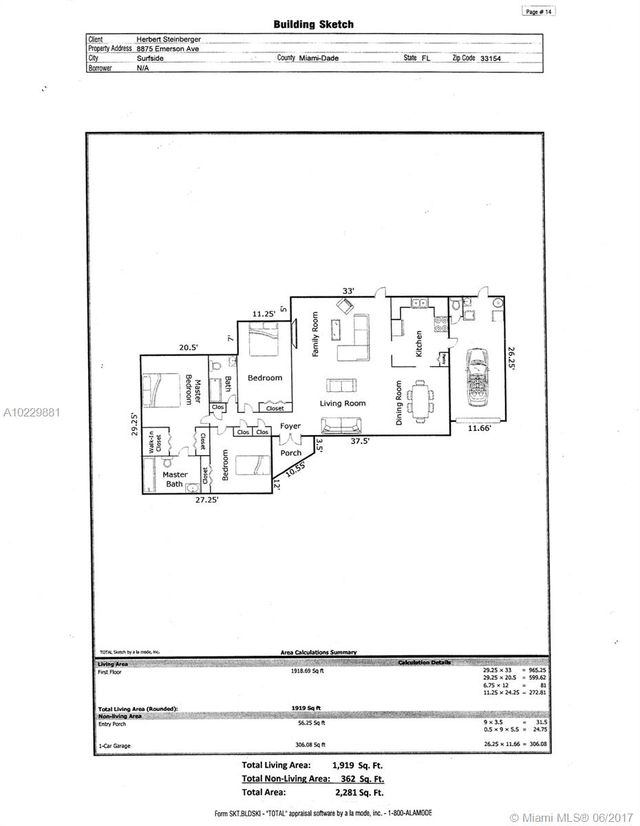
  • Tamaño: 1919 pie² / 178 m²
  • Precio por Pie / Metro: $323 / $3,478
  • Habitaciones:3
  • Baños Completos:2
  • Medios Baños:1
  • Impuesto anual:$3,465
  • Año de construcción:1955
  • Mascotas Permitidas:
  • Fecha de listado:February 22, 2017
  • Fecha Vendido: September 22, 2017
  • Días en el Mercado:211

Descripción


Just reduced!! This Surfside home is ideally located on a larger corner lot within walking distance to the beach!! This original condition property has a truly amazing floor plan which is perfect for that discriminating buyer who has the creative vision to see what this property can truly become with the right renovations!! Please see a copy of the floor plan, recently prepared by a certified residential property appraiser, which is located in the photos section. Don't miss this incredible opportunity!!

Características


  • Piso:Carpet, Terrazzo
  • Característica Interior:BedroomonMainLevel, DiningArea, SeparateFormalDiningRoom, FirstFloorEntry, MainLevelMaster, StackedBedrooms
  • Característica exterior:
Información requerida
Mila Bogatov
Mila Bogatov
Corredor Inmobiliario