Everglades Sugar Land C 4 bedroom Single Family House For Sale
14141 Luray Rd, Southwest Ranches, FL 33330

$2,100,000
Vendido
Mila Bogatov
Mila Bogatov
Corredor Inmobiliario

Detalles


  • Número MLS:A10158102
  • Tour virtual:
  • Precio: $2,250,000
  • Precio vendido: $2,100,000
  • Tamaño: 5979 pie² / 555 m²
  • Precio por Pie / Metro: $351 / $3,781
  • Habitaciones:4
  • Baños Completos:4
  • Medios Baños:1
  • Impuesto anual:$23,912
  • Año de construcción:2010
  • Mascotas Permitidas:
  • Frente al agua:
  • Fecha de listado:October 4, 2016
  • Fecha Vendido: March 3, 2017
  • Días en el Mercado:149

Descripción


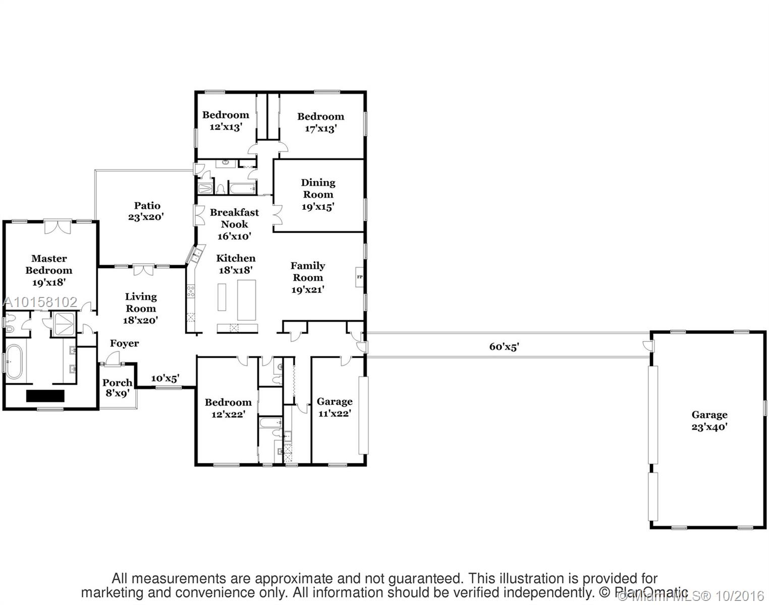
Sunshine Ranches 4Bed/4.5Ba/3caGa/8200SF Estate 4.27a corner lot Hancock/Luray Complete Renovation 2010 DCOTA Downsview Kitchen (Subzero/Viking/Wolf/Miele SS Granite) 2 Master Suites Main Master Bath Dbl head steam Shr/Marble/Custom Lg wrap around closet Salt Water Pool/Impact Glass w/ Detached 3600 sf Garage/Warehouse w/6 foot deep repair pit AC Office/Studio/Full Bath/walk in Closet fits/30Cars/RV Generator/Full House. Includes Bonus 22,500 ready to build lot and RegulationTennis Ct lot/Helicopter Land

Características


  • Aparatos Electrodomésticos:Intercom
  • Piso:Marble, Tile
  • Característica Interior:BedroomonMainLevel, ClosetCabinetry, EntranceFoyer, FrenchDoorsAtriumDoors, Fireplace, KitchenIsland, MainLevelMaster, Pantry, WalkInClosets, CentralVacuum, Intercom, Workshop
  • Característica exterior:EnclosedPorch, Fence, SecurityHighImpactDoors, Lighting, Porch, Shed
Información requerida
Mila Bogatov
Mila Bogatov
Corredor Inmobiliario