Coral Ridge Country Club 7 bedroom Single Family House For Sale
2809 Ne 37th Ct, Fort Lauderdale, FL 33308

$2,425,000
Vendido
Mila Bogatov
Mila Bogatov
Corredor Inmobiliario

Detalles


  • Número MLS:A10069718
  • Tour virtual:
  • Precio: $2,695,000
  • Precio vendido: $2,425,000
  • Tamaño: 8552 pie² / 795 m²
  • Precio por Pie / Metro: $284 / $3,052
  • Habitaciones:7
  • Baños Completos:6
  • Impuesto anual:$17,097
  • Año de construcción:2016
  • Frente al agua:
  • Fecha de listado:April 20, 2016
  • Fecha Vendido: May 31, 2017
  • Días en el Mercado:406

Descripción


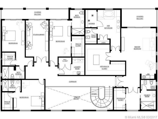
* INVESTOR SPECIAL / DISTRESSED SALE * $290 a foot! (Just reduced today over $600,000) ! Property must be under contract very soon!). 2017 New Construction in "Coral Ridge Country Club" Located on a open water turning basin (200 Ft. Wide Canal). This luxurious Estate home offers a huge open floor plan (8500 Sq. Ft) with a oversized 4 car garage. The location could not be better (100 yards from the entrance to CRCC with direct Intracoastal views from bedrooms & pool area) 100 Ft. of Deepwater ! Act fast

Características


  • Piso:CeramicTile, Other
  • Característica Interior:BreakfastArea, DiningArea, SeparateFormalDiningRoom, HighCeilings, KitchenIsland, KitchenDiningCombo, MainLevelMaster, Pantry, SittingAreainMaster, UpperLevelMaster, Bar, WalkInClosets
  • Característica exterior:Balcony, SecurityHighImpactDoors, Lighting, Porch, Patio
  • Frente al agua:BayFront, CanalAccess, NoFixedBridges
Información requerida
Mila Bogatov
Mila Bogatov
Corredor Inmobiliario