Mystic 500 2 bedroom Condo For Sale
3530 Mystic Pointe Dr, Unit 1109, Aventura, FL 33180

$295,000
Vendido
Mila Bogatov
Mila Bogatov
Corredor Inmobiliario

Detalles


  • Número MLS:A1635330
  • Unidad numérica:1109
  • Precio: $309,900
  • Precio vendido: $295,000
  • Tamaño: 1447 pie² / 134 m²
  • Precio por Pie / Metro: $204 / $2,194
  • Habitaciones:2
  • Baños Completos:2
  • Mantenimiento:$686
  • Impuesto anual:$2,788
  • Año de construcción:1991
  • Frente al agua:
  • Fecha de listado:May 1, 2012
  • Fecha Vendido: August 15, 2012
  • Días en el Mercado:105

Descripción


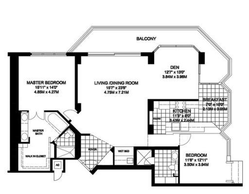
BACK ON MARKET AND REDUCED!!**ONLY $309,900**GREAT PRICE!! MYSTIC 500-THE NEWEST & BEST BLDG ON THE ISLE OF MYSTIC POINTE. RELAX AND LOUNGE ON YOUR WRAP AROUND BALCONY-ENJOY THE PANORAMIC WATER, GOLF AND CITY VIEWS!! 2+ DEN/DINING AREA, LARGEST 2/2 FLOOR PLAN (1,447 SQ.FT) EXCELLENT CONDITION AND THE BEST PRICE AND VALUE IN THE LINE!!"EAT-IN KITCHEN"-BRAND NEW CABINETS, IMMACULATE, BRIGHT AND OPEN, WHITE CERAMIC TILE, WHITE CARPET, WET BAR, SHOWS GREAT, DOGS OK CALL LISTING AGENT. (ALL CASH OFFERS ONLY!)

Características


  • Piso:Carpet, CeramicTile, Tile
  • Característica Interior:BedroomOnMainLevel, BreakfastArea, ClosetCabinetry, DiningArea, SeparateFormalDiningRoom, DualSinks, EatInKitchen, GardenTubRomanTub, CustomMirrors, MainLivingAreaEntryLevel, SplitBedrooms, SeparateShower, WalkInClosets
  • Característica exterior:Balcony, Barbecue, TennisCourts
  • Frente al agua:Bayfront, Other, Seawall
Información requerida
Mila Bogatov
Mila Bogatov
Corredor Inmobiliario