Grove At Grand Bay 5 bedroom Condo For Sale
2675 S Bayshore Dr, Unit 1602S, Miami, FL 33133

$7,000,000
Vendido
Mila Bogatov
Mila Bogatov
Corredor Inmobiliario

Detalles


  • Número MLS:A11946877
  • Tour virtual:
  • Unidad numérica:1602S
  • Precio: $8,950,000
  • Precio vendido: $7,000,000
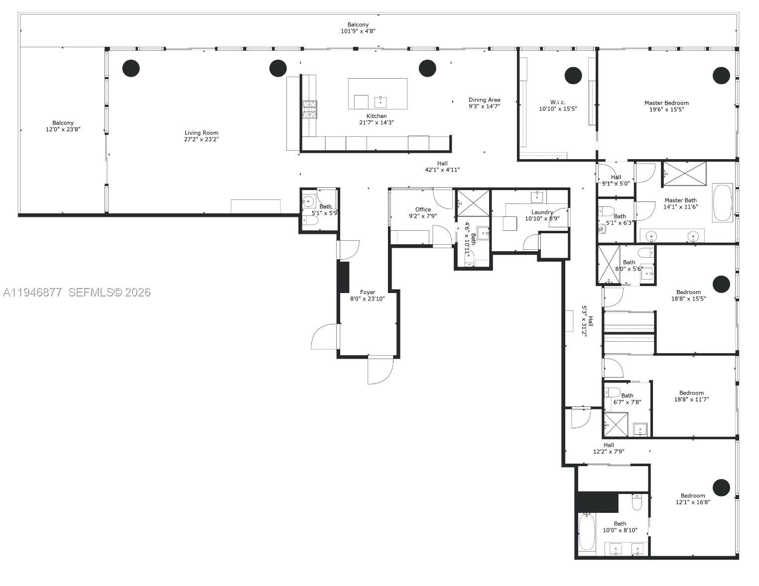
  • Tamaño: 3607 pie² / 335 m²
  • Precio por Pie / Metro: $1,941 / $20,889
  • Habitaciones:5
  • Baños Completos:5
  • Medios Baños:1
  • Mantenimiento:$5,846
  • Impuesto anual:$82,821
  • Año de construcción:2016
  • Fecha de listado:January 16, 2026
  • Fecha Vendido: March 13, 2026
  • Días en el Mercado:55

Descripción


Experience luxury and sophistication in this breathtaking 5-bedroom, 5 1/2-bathroom residence at the exclusive Grove at Grand Bay. Offering expansive views of Biscayne Bay, downtown Miami, and the lush greenery of Coconut Grove. This home features a customized floor plan with high ceilings, floor-to-ceiling windows, and upgraded selections throughout. The gourmet kitchen is equipped with top-of-the-line appliances, custom cabinetry, and sleek marble countertops. The primary suite offers a serene retreat with a generous walk-in closet, and a spa-like en-suite bath with a soaking tub, separate shower, and dual vanities. The four additional bedrooms are equally impressive, offering ample space and ensuite baths. The Grove at Grand Bay offers world-class amenities, 24-hour concierge, valet.

Características


  • Piso:Hardwood, Wood
  • Característica Interior:BedroomOnMainLevel, FirstFloorEntry
  • Característica exterior:Balcony, SecurityHighImpactDoors

Localización


Información requerida
Mila Bogatov
Mila Bogatov
Corredor Inmobiliario