Summit Condo 2 bedroom Condo For Sale
1201 S Ocean Dr, Unit 908S, Hollywood, FL 33019

$495,000
Vendido
Mila Bogatov
Mila Bogatov
Corredor Inmobiliario

Detalles


  • Número MLS:A11760033
  • Tour virtual:
  • Unidad numérica:908S
  • Precio: $550,000
  • Precio vendido: $495,000
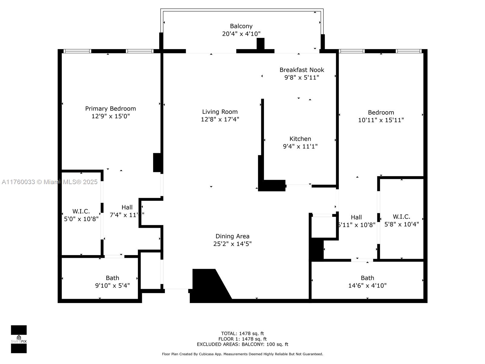
  • Tamaño: 1570 pie² / 146 m²
  • Precio por Pie / Metro: $315 / $3,394
  • Habitaciones:2
  • Baños Completos:2
  • Mantenimiento:$5,134
  • Impuesto anual:$12,206
  • Año de construcción:1982
  • Fecha de listado:March 12, 2025
  • Fecha Vendido: July 21, 2025
  • Días en el Mercado:130

Descripción


EXCEPTIONAL 2BR/2BA CONDO WITH DUAL PRIMARY SUITES IN A SPACIOUS SPLIT FLOOR PLAN, BOASTING OCEAN AND INTRACOASTAL VIEWS. A RARE OPPORTUNITY TO PERSONALIZE THIS 1,570 SQ FT RESIDENCE AT AN INCREDIBLE VALUE. IMPACT WINDOWS AND DOORS. LOCATED IN AN EXCLUSIVE BEACHFRONT BUILDING, OFFERING WORLD-CLASS AMENITIES INCLUDING TWO SPARKLING POOLS, TENNIS AND PICKLEBALL COURTS, GYM, SECURITY AND RESTAURANT. ELEVATE YOUR LIFESTYLE IN THIS RESORT-STYLE SETTING WITH AN ACTIVE SOCIAL SCENE ALL ON THE HOLLYWOOD BROADWALK. 15 MINS TO FLL AIRPORT AND AVENTURA MALL.

Características


  • Piso:Carpet
  • Característica Interior:Elevator, SplitBedrooms, WalkInClosets
  • Característica exterior:Balcony, Patio
  • Frente al agua:OceanFront

Localización


Información requerida
Mila Bogatov
Mila Bogatov
Corredor Inmobiliario