Cornelia M Day Sub Pent H 1 bedroom Condo For Sale
3161 Center St, Unit 202, Miami, FL 33133

$669,300
Vendido
Mila Bogatov
Mila Bogatov
Corredor Inmobiliario

Detalles


  • Número MLS:A11050657
  • Tour virtual:
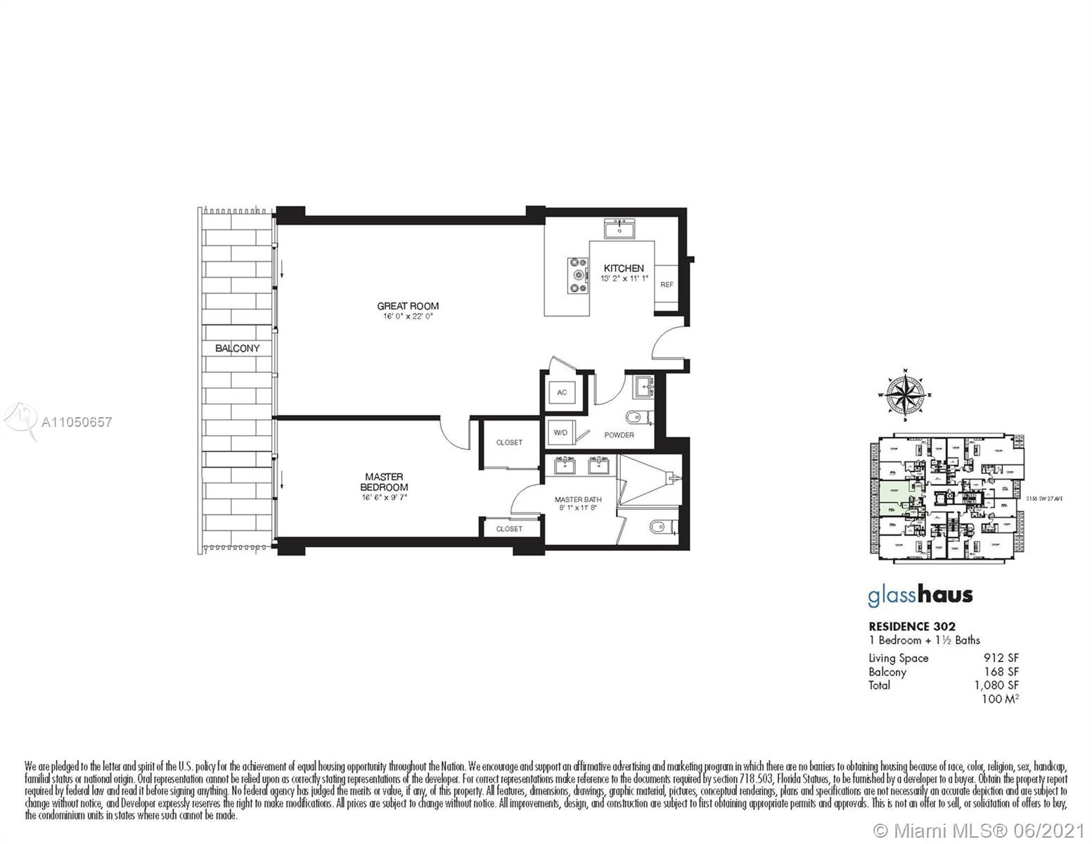
  • Unidad numérica:202
  • Precio: $729,900
  • Precio vendido: $669,300
  • Habitaciones:1
  • Baños Completos:1
  • Medios Baños:1
  • Mantenimiento:$700
  • Impuesto anual:$1,000
  • Año de construcción:2021
  • Fecha de listado:June 15, 2021
  • Fecha Vendido: November 1, 2021
  • Días en el Mercado:138

Descripción


Soon to be delivered new construction in the Grove, complete with gym and rooftop pool. Green Building!! Your energy bill will be so low, and all is so much more efficient! Rarely available boutique building with contemporary design, only 23 units. Enjoy European style living, walking distance to great restaurants, parks, shopping, marina and the bay.

Características


  • Piso:CeramicTile
  • Característica Interior:BedroomonMainLevel, FirstFloorEntry, CustomMirrors, MainLivingAreaEntryLevel, WalkInClosets
  • Característica exterior:Balcony, SecurityHighImpactDoors

Localización


Información requerida
Mila Bogatov
Mila Bogatov
Corredor Inmobiliario