Rosemount Duplex For Sale
1045 Sw 25th Ave, Miami, FL 33135

$1,375,000
En venta
Mila Bogatov
Mila Bogatov
Corredor Inmobiliario

Detalles


  • Número MLS:A11923141
  • Tour virtual:
  • Precio: $1,375,000
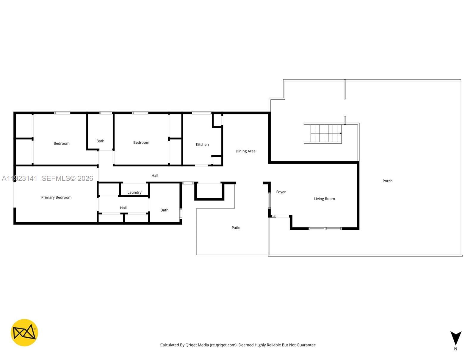
  • Tamaño: 2658 pie² / 247 m²
  • Precio por Pie / Metro: $517 / $5,568
  • Impuesto anual:$11,934
  • Año de construcción:1988
  • Fecha de listado:December 1, 2025
  • Días en el Mercado:164

Descripción


This architect-designed duplex is perfectly situated between the coveted areas of Coconut Grove and Brickell. Built in 1988 and thoughtfully planned for comfort and functionality, this spacious property features two well-appointed units, each offering 3 bedrooms and 2 full baths. Newly installed impact windows and doors on both units. Generous bedroom size and plenty of closet space in all bedrooms. Each unit offers parking for up to 4 vehicles. Whether you're seeking a strong income property or a comfortable home with rental flexibility this duplex is a rare find.

Características


  • Piso:Other
  • Característica exterior:

Localización


Información requerida
Mila Bogatov
Mila Bogatov
Corredor Inmobiliario