Industiral For Sale
29055 Sw 107th Ave, Homestead, FL 33033

$5,900,000
En venta
Mila Bogatov
Mila Bogatov
Corredor Inmobiliario

Detalles


  • Número MLS:A11921561
  • Tour virtual:
  • Precio: $5,900,000
  • Impuesto anual:$40,044
  • Fecha de listado:November 26, 2025
  • Días en el Mercado:163

Descripción


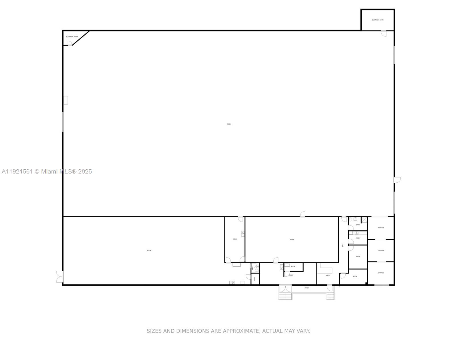
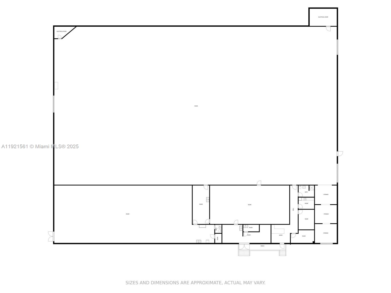
Discover an exceptional opportunity in this 2015, 35,796 sqft insulated steel building on 5-acre lot (4 useable). Investor or Owner Users welcome. It offers significant benefits including 26 ft high ceilings, a secure fenced lot, plenty of parking, powerful electrical systems, security system and lights. Electrical 800-amp 480/277 v three phase & (2) 400 amp 120/240v 3 phase system. Two dock height doors and three drive up doors. Additional white hurricane impact tents add an additional 6000-7000 sqft of useable space, rented MTM. With its prime location near the Turnpike, Homestead Air Base, and major distribution centers, your business will have unparalleled logistics access. Ample outdoor storage. Information deemed accurate but must be verified by consumer. Also for lease, can be divided.

Características


  • Piso:
  • Característica exterior:

Localización


Información requerida
Mila Bogatov
Mila Bogatov
Corredor Inmobiliario