Hollywood Park Duplex For Sale
1309 N 24th Ave, Hollywood, FL 33020

$725,000
En venta
Mila Bogatov
Mila Bogatov
Corredor Inmobiliario

Detalles


  • Número MLS:A11902829
  • Tour virtual:
  • Precio: $725,000
  • Tamaño: 1614 pie² / 150 m²
  • Precio por Pie / Metro: $449 / $4,835
  • Impuesto anual:$9,983
  • Año de construcción:1925
  • Fecha de listado:October 28, 2025
  • Días en el Mercado:181

Descripción


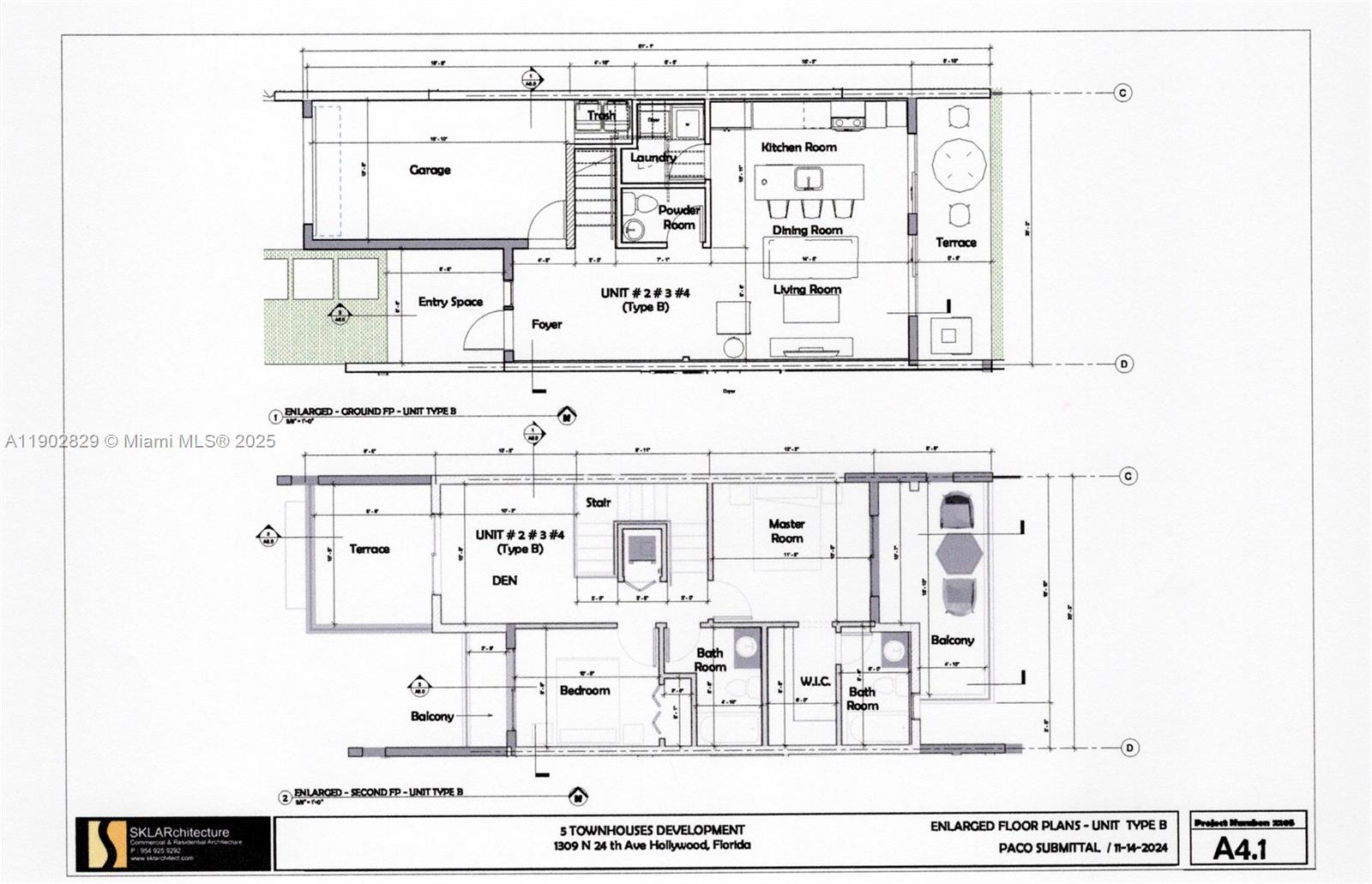
INVESTOR'S DREAM!!! GREAT DEVELOPMENT OPPORTUNITY FOR 5 TOWNHOMES (2BR+DEN/2.5BA EACH) ON THIS OVERSIZED CORNER LOT OF 14,518 SQFT. PRE-APPROVED PLANS. CURRENTLY BOTH UNITS ARE RENTED WITH IMMEDIATE INCOME. AMPLE PARKING. ARCHITECTURAL PLANS ARE READY FOR PACO PRESENTATION (SEE ATTACHED DOCUMENT). THIS PROPERTY IS CONVENIENTLY LOCATED BETWEEN FORT LAUDERDALE AND MIAMI. LESS THAN 3.5 MILES TO HOLLYWOOD BEACH AND MINUTES DRIVE TO DOWNTOWN HOLLYWOOD CIRCLE

Características


  • Piso:CeramicTile, Laminate
  • Característica exterior:Porch, Patio, Shed

Localización


Información requerida
Mila Bogatov
Mila Bogatov
Corredor Inmobiliario