Multifamily For Sale
000 Midway Te, Ocala, FL 34472

$445,000
En venta
Mila Bogatov
Mila Bogatov
Corredor Inmobiliario

Detalles


  • Número MLS:A11886666
  • Tour virtual:
  • Precio: $445,000
  • Año de construcción:2026
  • Fecha de listado:September 29, 2025
  • Días en el Mercado:222
  • Unidades totales:10

Descripción


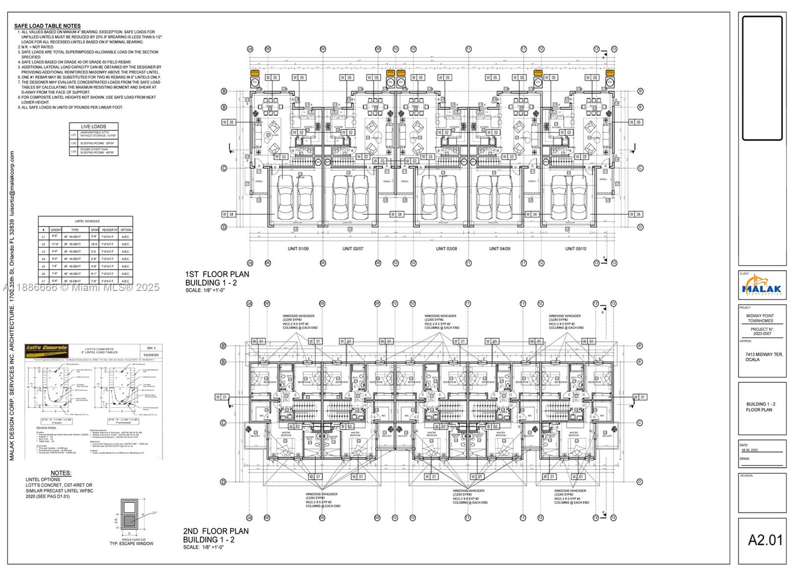
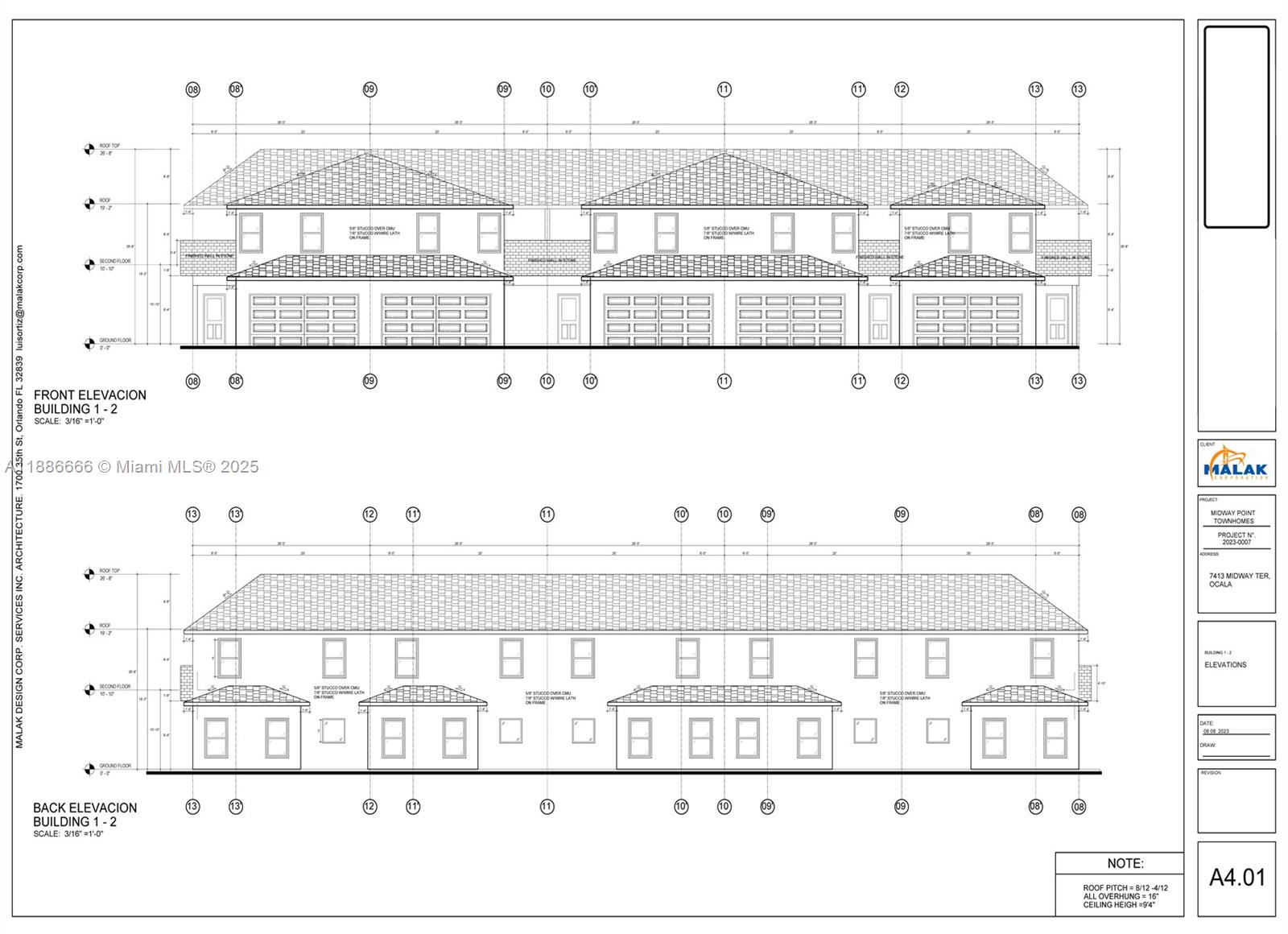
Exceptional development opportunity Im Marion County FL (Ocala)! "Drastically reduce asking price" -acre vacant lot has already been approved by the county for 10 townhomes, offering a rare chance to bring a multi-unit residential project to life in a prime location. The property provides ample space for modern design, community amenities, and efficient layouts, making it ideal for builders and investors seeking strong long-term value. With approvals in place, much of the groundwork is complete—streamlining the path to construction and future sales. Don’t miss this opportunity to secure a ready-to-build parcel with tremendous potential. MOTIVATED SELLER!!!!

Características


  • Piso:
  • Característica exterior:

Localización


Información requerida
Mila Bogatov
Mila Bogatov
Corredor Inmobiliario