Mariners Cove Of Eagle La 5 bedroom Single Family House For Sale
346 Nw 118th Ave, Coral Springs, FL 33071

$860,000
Vendido
Mila Bogatov
Mila Bogatov
Corredor Inmobiliario

Detalles


  • Número MLS:A11900467
  • Tour virtual:
  • Precio: $899,000
  • Precio vendido: $860,000
  • Tamaño: 3281 pie² / 305 m²
  • Precio por Pie / Metro: $262 / $2,821
  • Habitaciones:5
  • Baños Completos:5
  • Mantenimiento:$260
  • Impuesto anual:$14,359
  • Año de construcción:1998
  • Fecha de listado:October 22, 2025
  • Fecha Vendido: December 5, 2025
  • Días en el Mercado:43

Descripción


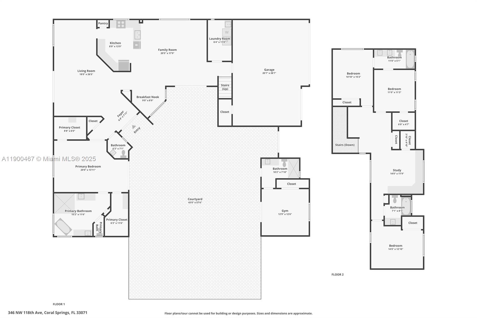
Discover luxury courtyard living in this 5BD/5BA estate in Mariners Cove at Eagle Lake, a gated 130-home community in the heart of Coral Springs. This home showcases refined style and modern functionality with a reimagined kitchen featuring brand-new quartz countertops, custom cabinetry & stainless appliances. The primary suite offers a spa-like retreat with porcelain tile, floating vanities & custom closets, while all additional baths have been beautifully renovated. A detached guest house with full bath opens to the private courtyard & pool, perfect for a gym or in-law suite. Impact windows/doors, 22kW Generac generator w/500-gal propane tank, gas range/grill, epoxy 3-car garage, plantation shutters, new AC (2022), fenced corner lot, top schools & low HOA.

Características


  • Piso:Tile
  • Característica Interior:BreakfastBar, BuiltInFeatures, BreakfastArea, ClosetCabinetry, EntranceFoyer, FamilyDiningRoom, FirstFloorEntry, HighCeilings, JettedTub, SeparateShower, VaultedCeilings, WalkInClosets
  • Característica exterior:Fence, Lighting, SecurityHighImpactDoors

Localización


Información requerida
Mila Bogatov
Mila Bogatov
Corredor Inmobiliario