Old Cutler Estates Sec 1 4 bedroom Single Family House For Sale
6960 Sw 148th Ter, Palmetto Bay, FL 33158

$1,825,000
En venta
Mila Bogatov
Mila Bogatov
Corredor Inmobiliario

Detalles


  • Número MLS:A11845868
  • Tour virtual:
  • Precio: $1,825,000
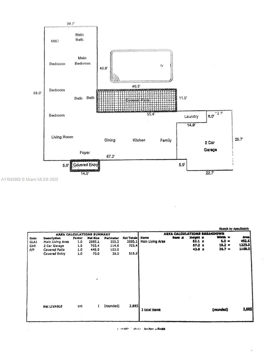
  • Tamaño: 2838 pie² / 264 m²
  • Precio por Pie / Metro: $643 / $6,922
  • Habitaciones:4
  • Baños Completos:3
  • Impuesto anual:$6,916
  • Año de construcción:1969
  • Fecha de listado:July 24, 2025
  • Días en el Mercado:275

Descripción


Impact windows/doors. 2018 concrete roof tile. Exceptional 4/3 Palmetto Bay home designed for comfort, entertaining, and outdoor living. Ideally located near top-rated public/private schools, parks, shops, and bike paths in a quiet residential area. The spacious primary suite features his and hers walk-in closets, an updated in-suite bath with dual showers/sinks, and its own tankless water heater. The large kitchen boasts wood cabinetry, granite countertops, and an L-shaped counter with seating capacity for 4. Open living, dining, and family areas offer easy flow, with French doors throughout connecting indoor and outdoor spaces. Includes oversized 2-car garage, dedicated laundry room with cabinetry and utility sink. Short term leaseback agreement preferred.

Características


  • Piso:Tile
  • Característica Interior:BuiltInFeatures, BedroomOnMainLevel, DualSinks, FrenchDoorsAtriumDoors, FirstFloorEntry, Pantry, Bar, WalkInClosets
  • Característica exterior:Deck, Fence, SecurityHighImpactDoors, Porch

Localización


Información requerida
Mila Bogatov
Mila Bogatov
Corredor Inmobiliario