N A 3 bedroom Single Family House For Sale
10250 Sw 177th St, Miami, FL 33157

$575,900
En venta
Mila Bogatov
Mila Bogatov
Corredor Inmobiliario

Detalles


  • Número MLS:A11790903
  • Tour virtual:
  • Precio: $575,900
  • Tamaño: 1025 pie² / 95 m²
  • Precio por Pie / Metro: $562 / $6,048
  • Habitaciones:3
  • Baños Completos:2
  • Impuesto anual:$4,985
  • Año de construcción:1957
  • Fecha de listado:May 8, 2025
  • Días en el Mercado:362

Descripción


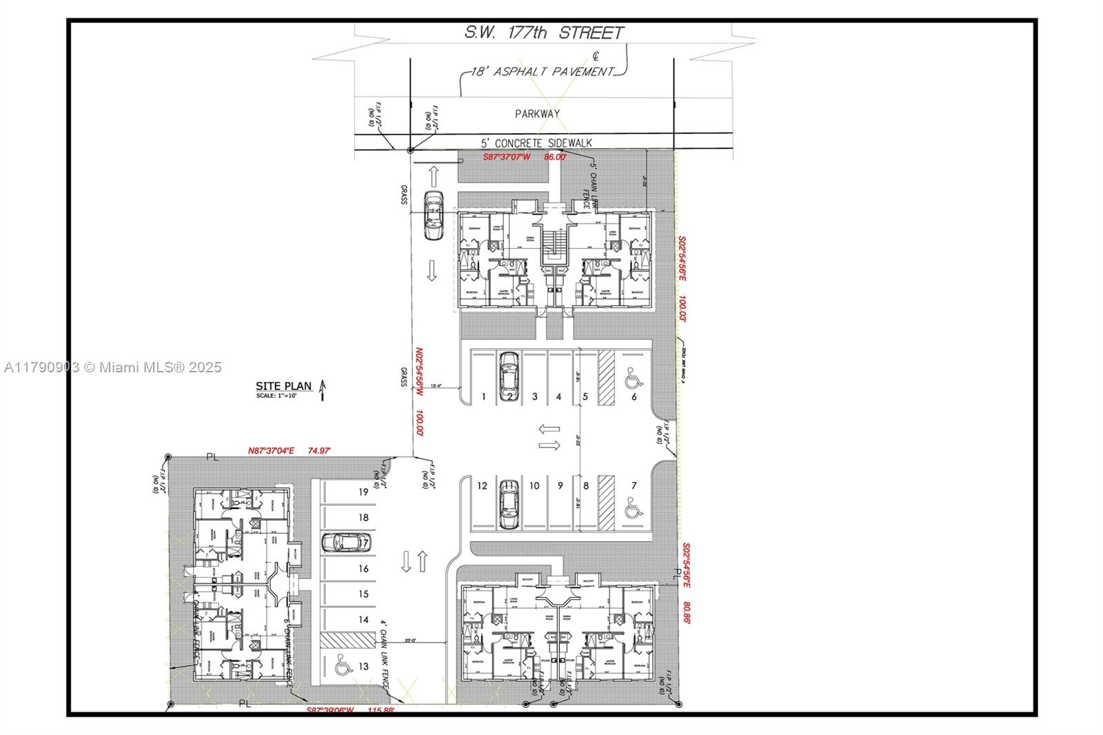
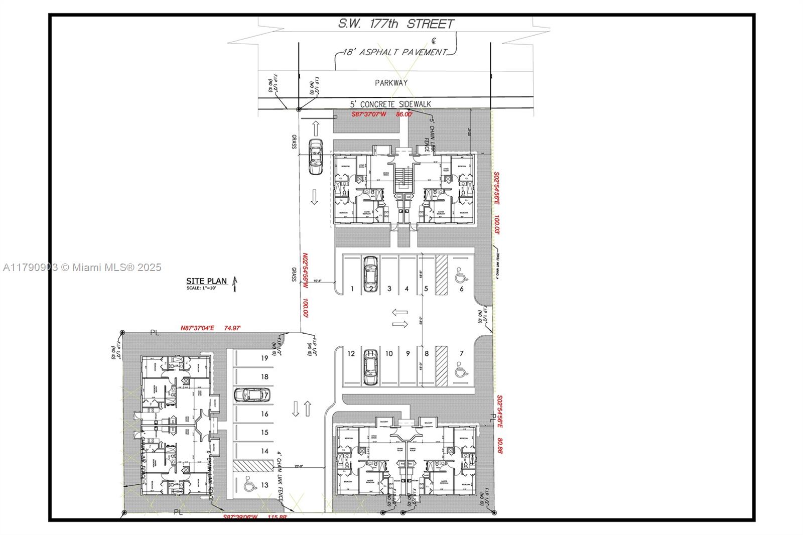
Nice Development Opportunity with Income-Producing Home! The house is sold along with the lot - 30-5032-000-0330 Don’t miss this rare chance to own a prime residential property being sold with an additional parcel (Folio #30-5032-000-0330), offering outstanding potential for new construction. Combined, the two parcels allow for development of up to 12 units—ideal for investors or developers looking to build in a high-demand area. The existing property features a well-maintained single-family home with 3 bedrooms and 2 bathrooms, perfect for generating rental income while you plan your new project or as a primary residence with long-term value. Located in a growing neighborhood with strong rental demand, this is an excellent opportunity to secure a property with built-in potential.

Características


  • Piso:Tile
  • Característica Interior:BedroomOnMainLevel, FirstFloorEntry
  • Característica exterior:Fence

Localización


Información requerida
Mila Bogatov
Mila Bogatov
Corredor Inmobiliario