Mixed Use For Sale
2025 N Dixie Hwy, Pompano Beach, FL 33060

$8,000,000
En venta
Mila Bogatov
Mila Bogatov
Corredor Inmobiliario

Detalles


  • Número MLS:A11943771
  • Tour virtual:
  • Precio: $8,000,000
  • Impuesto anual:$76,000
  • Año de construcción:1984
  • Fecha de listado:January 12, 2026
  • Días en el Mercado:109
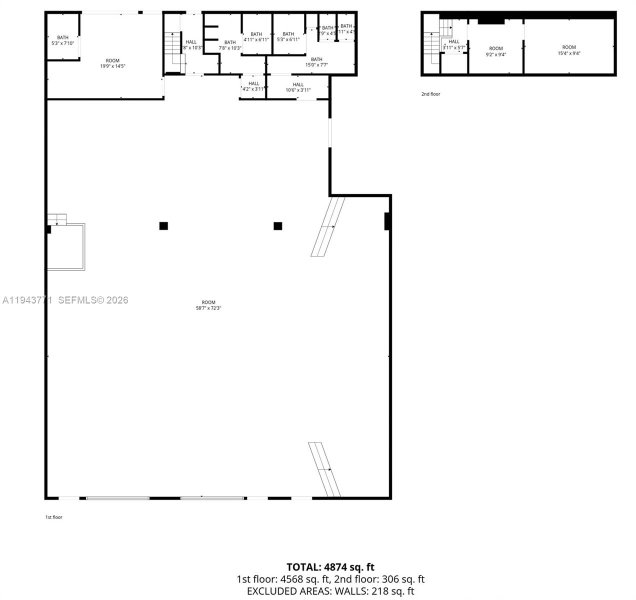
  • Unidades totales:14

Descripción


Zoned for Church + Schools + Live Local Approved Cash-flowing Live Local redevelopment opportunity on North Dixie Highway (SR-811) in Pompano Beach. ±1.54 acres improved with 26,808 SF of existing retail/office buildings generating $570,000+ in annual income, while supporting a future ±140-unit residential development by-right under Florida’s Live Local Act, subject to site plan approval. In addition to redevelopment density, the asset offers near-term cap-rate compression through tenant upside. Current in-place rents average approximately $21/SF, materially below documented market leases in the $28–$32/SF range, providing a clear path to NOI growth through lease renewals and re-tenanting. This is not a retail acquisition. Developers are acquiring time, entitlement certainty, unit yield, and income growth. The property generates cash flow during the entitlement and planning phase, allowing the asset to pay for its own hold while value is enhanced on both the income and redevelopment fronts.

Características


  • Piso:
  • Característica exterior:

Localización


Información requerida
Mila Bogatov
Mila Bogatov
Corredor Inmobiliario