Industiral For Sale
1361 Nw 155th Dr, Miami Gardens, FL 33169

$14 / month
En renta
Mila Bogatov
Mila Bogatov
Corredor Inmobiliario

Detalles


  • Número MLS:A11903991
  • Tour virtual:
  • Precio: $14
  • Impuesto anual:$154,958
  • Año de construcción:1973
  • Fecha de listado:October 28, 2025
  • Días en el Mercado:183

Descripción


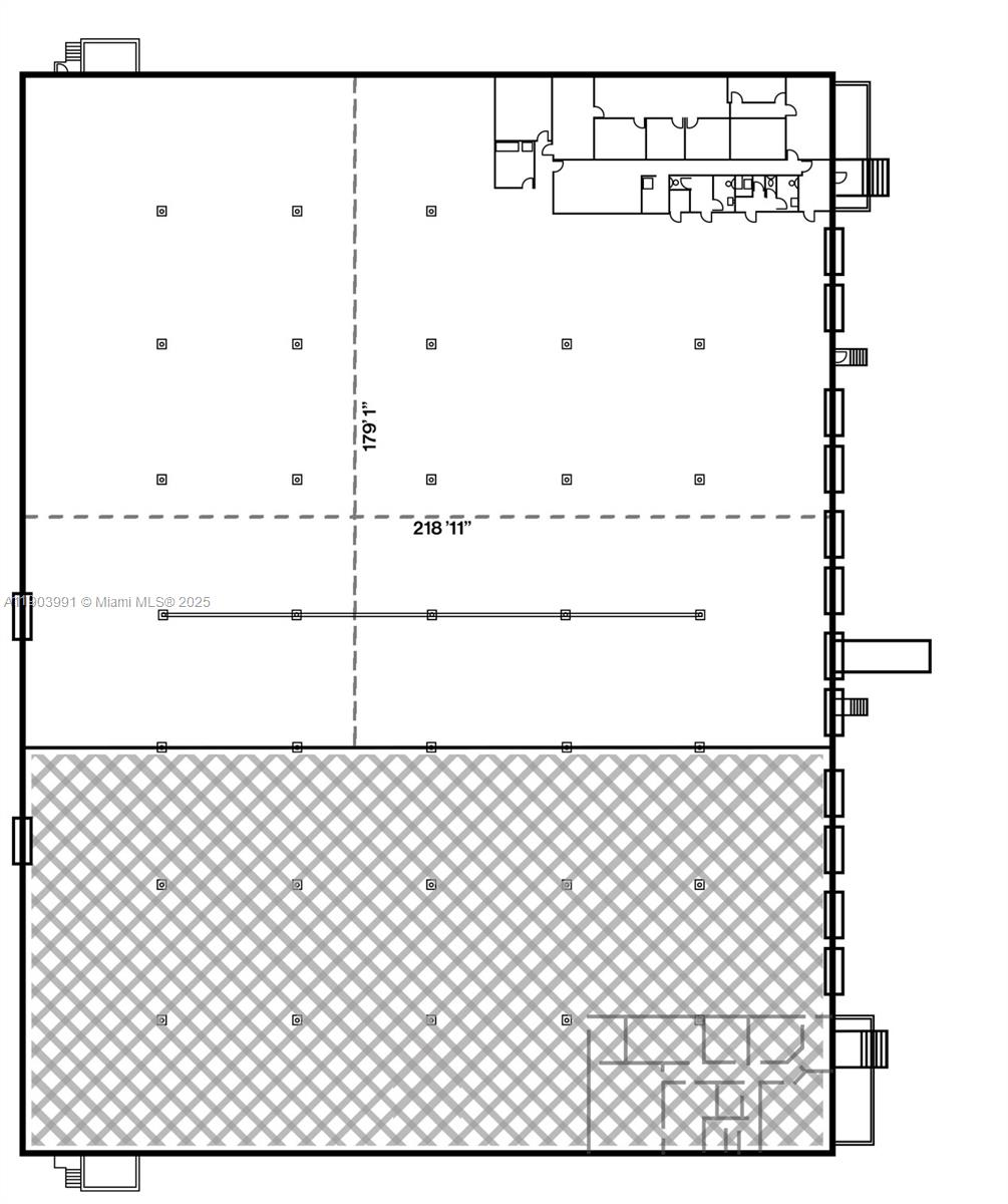
Located in the Sunshine State Industrial Park, this ±39,000 SF warehouse (±36,200 SF warehouse + ±2,800 SF office) offers modern functionality and unbeatable logistics access. With 22-foot clear height, heavy 3-phase power, 8 dock-height doors, and a secure fenced lot, this property is ideal for distribution, manufacturing, or logistics operations. The property offers immediate access to the Golden Glades Interchange, connecting SR-826 (Palmetto Expressway), Florida’s Turnpike, and I-95 — providing direct routes to Port of Miami, Miami International Airport, and key South Florida markets. Available May 1, 2026, with the sublease running through May 1, 2030 $15.50/SF Gross.

Características


  • Piso:
  • Característica Interior:
  • Característica exterior:

Localización


Información requerida
Mila Bogatov
Mila Bogatov
Corredor Inmobiliario