Floranada Center For Sale
00 Ne 43rd St, Oakland Park, FL 33334

$349,900
En venta
Mila Bogatov
Mila Bogatov
Corredor Inmobiliario

Detalles


  • Número MLS:A11959705
  • Tour virtual:
  • Precio: $349,900
  • Impuesto anual:$2,327
  • Fecha de listado:February 5, 2026
  • Días en el Mercado:111

Descripción


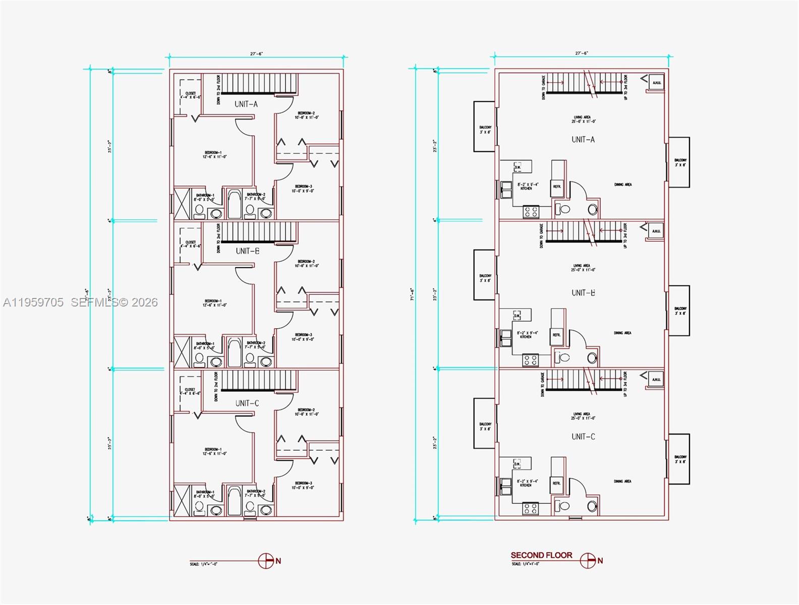
Prime development opportunity in Oakland Park. Vacant residential lot zoned **RM-16 (Medium Density Multi-Family Residential), allowing the construction of up to three (4) townhome units. No rezoning required. The property is well positioned within an established infill area, with close proximity to major roadways, retail, dining, and employment centers, and convenient access to I-95 and surrounding Broward County markets.

Localización


Información requerida
Mila Bogatov
Mila Bogatov
Corredor Inmobiliario