Hollywood Park 3 bedroom Single Family House For Sale
2527 Arthur St, Hollywood, FL 33020

$370,000
Vendido
Mila Bogatov
Mila Bogatov
Corredor Inmobiliario

Detalles


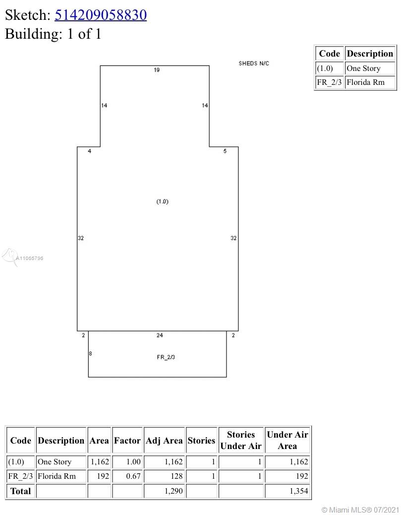
  • Número MLS:A11065796
  • Tour virtual:
  • Precio: $370,000
  • Precio vendido: $370,000
  • Tamaño: 2324 pie² / 216 m²
  • Precio por Pie / Metro: $159 / $1,714
  • Habitaciones:3
  • Baños Completos:2
  • Impuesto anual:$3,885
  • Año de construcción:1946
  • Fecha de listado:July 3, 2021
  • Fecha Vendido: August 6, 2021
  • Días en el Mercado:33

Descripción


No HOA. Stainless steel appliances. New roof and tankless water heater. Fresh paint. New Tile the living sq ft 1354

Características


  • Piso:Tile
  • Característica Interior:BedroomonMainLevel, FirstFloorEntry
  • Característica exterior:

Localización


Información requerida
Mila Bogatov
Mila Bogatov
Corredor Inmobiliario