Goldcoaster 3 bedroom Mobile House For Sale
34850 Sw 187th Ave Lot 443, Homestead, FL 33034

$218,000
En venta
Mila Bogatov
Mila Bogatov
Corredor Inmobiliario

Detalles


  • Número MLS:A11992919
  • Tour virtual:
  • Precio: $218,000
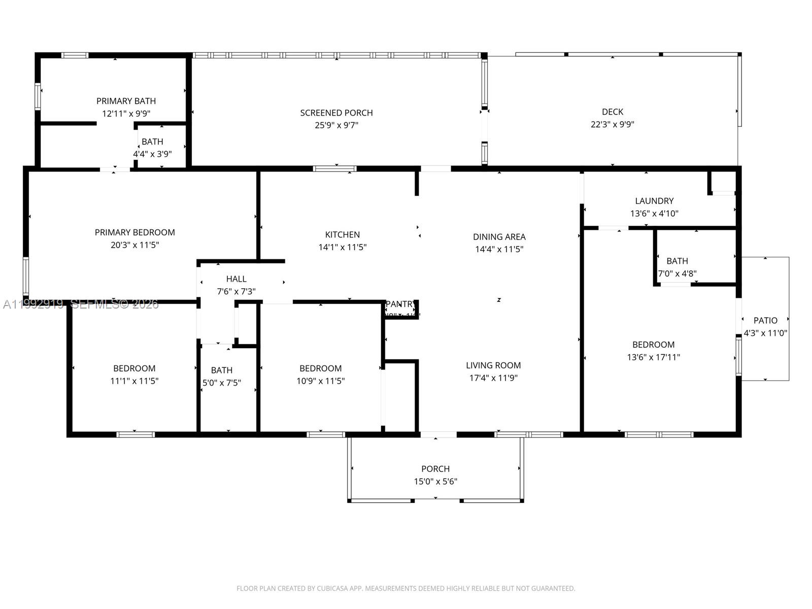
  • Tamaño: 1600 pie² / 149 m²
  • Precio por Pie / Metro: $136 / $1,467
  • Habitaciones:3
  • Baños Completos:2
  • Año de construcción:1981
  • Fecha de listado:April 1, 2026
  • Días en el Mercado:48

Descripción


This home does not feel like a typical mobile home. Fully remodeled and move-in ready, this unique property stands out with its stucco exterior, giving it the look and feel of a single-family residence. Property offers expanded outdoor space and parking for up to 4 vehicles — a rare feature in this community. Inside, the home showcases modern upgrades throughout, complemented by a functional layout designed for comfortable living. A brand-new roof was installed just a few months ago, adding long-term value and peace of mind. Enjoy a spacious enclosed terrace with windows, along with an open deck perfect for entertaining or relaxing. The property also features a dedicated laundry room with its own enclosed space and additional storage, plus a separate shed for extra convenience. Located in Goldcoaster Mobile Home Park, a land lease community with current lot rent approximately $817/month (subject to change). No ownership of land is included in the sale. Seller will pay off PACE financing for the roof at closing. Buyer must be approved by park management. All information is deemed reliable but not guaranteed. Buyer to verify all details, including lot rent, park rules, and requirements. Address 18720 SW 349 ST LOT 443. The MLS address used reflects the lot/community location for identification purposes only and does not represent the exact physical location of the home or ownership of the land.

Características


  • Piso:Laminate
  • Característica Interior:BedroomOnMainLevel, DualSinks, EatInKitchen, FirstFloorEntry, KitchenIsland, TubShower, WalkInClosets
  • Característica exterior:Deck, EnclosedPorch, Lighting, Shed

Localización


Información requerida
Mila Bogatov
Mila Bogatov
Corredor Inmobiliario