Office For Sale
16853 Ne 2nd Ave, Unit S305, North Miami Beach, FL 33162

$3,990 / month
En renta
Mila Bogatov
Mila Bogatov
Corredor Inmobiliario

Detalles


  • Número MLS:A11881030
  • Tour virtual:
  • Unidad numérica:S305
  • Precio: $3,990
  • Impuesto anual:$136,918
  • Fecha de listado:September 18, 2025
  • Días en el Mercado:233

Descripción


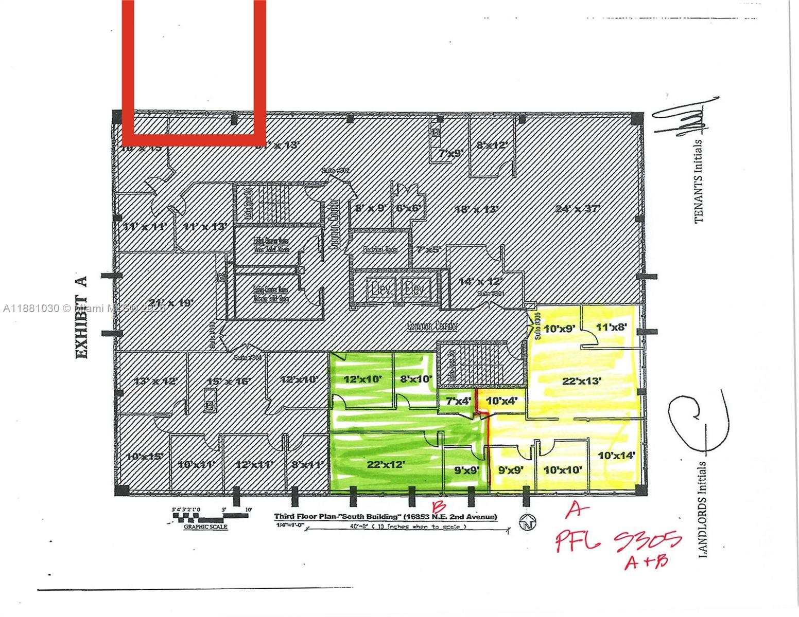
This amazing Class B asset has a mix of medical and professional tenants. Property is comprised of two buildings with 4 floors each. It has been updated with new elevators and operating hours security. Conveniently located near the Golden Glades Exchange and bus access for employees. Top tenant include NSU, HCA Hospitals and major medical groups. The unit is 1260 sf and rent is $3,990.00 per month. Move in is first and two months security.

Características


  • Piso:
  • Característica Interior:
  • Característica exterior:

Localización


Información requerida
Mila Bogatov
Mila Bogatov
Corredor Inmobiliario