Biscayne Estates 4 bedroom Single Family House For Sale
16955 Sw 288th St, Homestead, FL 33030

$1,150,000
Pendiente En venta
Mila Bogatov
Mila Bogatov
Corredor Inmobiliario

Detalles


  • Número MLS:A11903592
  • Tour virtual:
  • Precio: $1,150,000
  • Tamaño: 4230 pie² / 393 m²
  • Precio por Pie / Metro: $272 / $2,926
  • Habitaciones:4
  • Baños Completos:4
  • Impuesto anual:$11,084
  • Año de construcción:1959
  • Fecha de listado:October 27, 2025
  • Días en el Mercado:193

Descripción


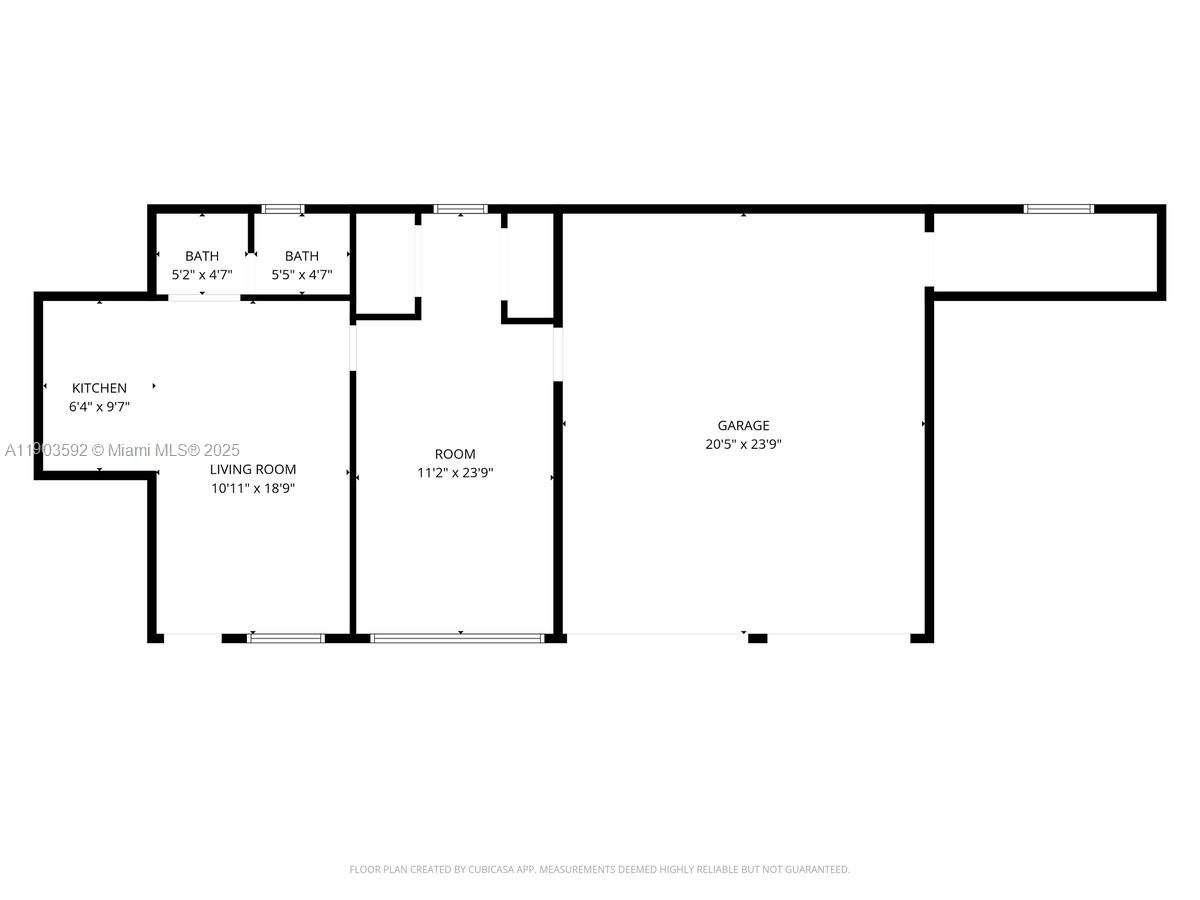
PROPERTY BEING SOLD AS-IS!!! Opportunity knocks! Spacious 4BR/3BA single-family home on 1.67 acres in Homestead, including adjacent corner fenced vacant lot (additional folio) inside the UDB, possible rezoning potential (buyer to verify & complete due diligence). Property features new shingle roof (2024) & flat roof (2021). Interior offers tiled floors, foyer entry, formal living & dining rooms, large family room off kitchen, & 2-car garage. Rear guesthouse includes 1BR/1BA, kitchen, attached 2-car garage, & pool cabana with kitchen & rec room. Screened patio & pool area, surrounded by mature oak trees, solar opening gate & circular driveway. Home in need of full renovation—ideal for investors or developers seeking opportunity or large combined family compound. Easy to Show & Ready to Go!

Características


  • Piso:Concrete, Tile
  • Característica Interior:BreakfastBar, BedroomOnMainLevel, DiningArea, SeparateFormalDiningRoom, EntranceFoyer, FirstFloorEntry, SplitBedrooms, StackedBedrooms, TubShower, WalkInClosets
  • Característica exterior:Barbecue, EnclosedPorch, Fence, StormSecurityShutters

Localización


Información requerida
Mila Bogatov
Mila Bogatov
Corredor Inmobiliario