Newmans Survey For Sale
9200 Griffin Rd, Cooper City, FL 33328

$2,100,000
En venta
Mila Bogatov
Mila Bogatov
Corredor Inmobiliario

Detalles


  • Número MLS:A11907451
  • Tour virtual:
  • Precio: $2,100,000
  • Impuesto anual:$15,800
  • Fecha de listado:November 4, 2025
  • Días en el Mercado:178

Descripción


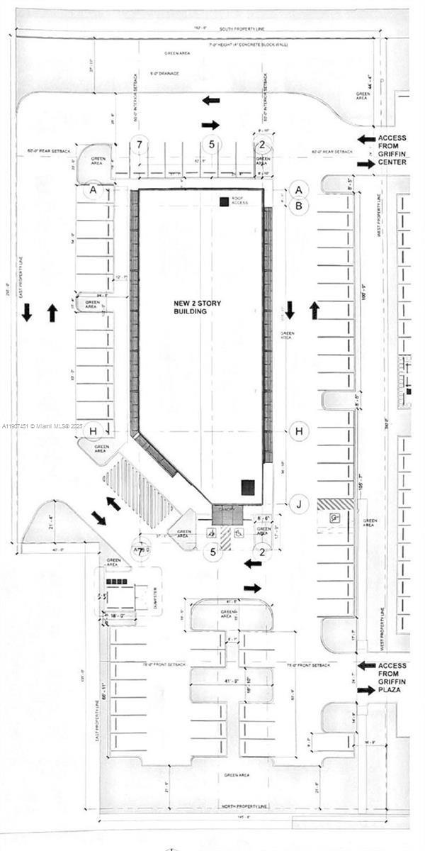
Prime Commercial Land on Griffin Rd in Cooper City | 1.5238± Total Acres (Two Folios). Exceptional frontage along high-visibility Griffin Road in Cooper City. Zoned B-2 Planned Community Business Center District, allowing various commercial uses including banks, daycare centers, restaurants, and retail (verify permitted and conditional uses with Cooper City). Approx. 29,000 vehicles pass daily. Adjacent to retail plaza with Regions Bank, convenience store, and additional consumer services. Population of over 355,000 residents and 19,000+ businesses in the area. Total combined land area 1.5238± acres. Contact us for details.

Localización


Información requerida
Mila Bogatov
Mila Bogatov
Corredor Inmobiliario