Lehigh Acres For Sale
4033 26th, Other, FL 33976

$34,900
En venta
Mila Bogatov
Mila Bogatov
Corredor Inmobiliario

Detalles


  • Número MLS:A11906382
  • Tour virtual:
  • Precio: $34,900
  • Impuesto anual:$391
  • Fecha de listado:November 3, 2025
  • Días en el Mercado:175

Descripción


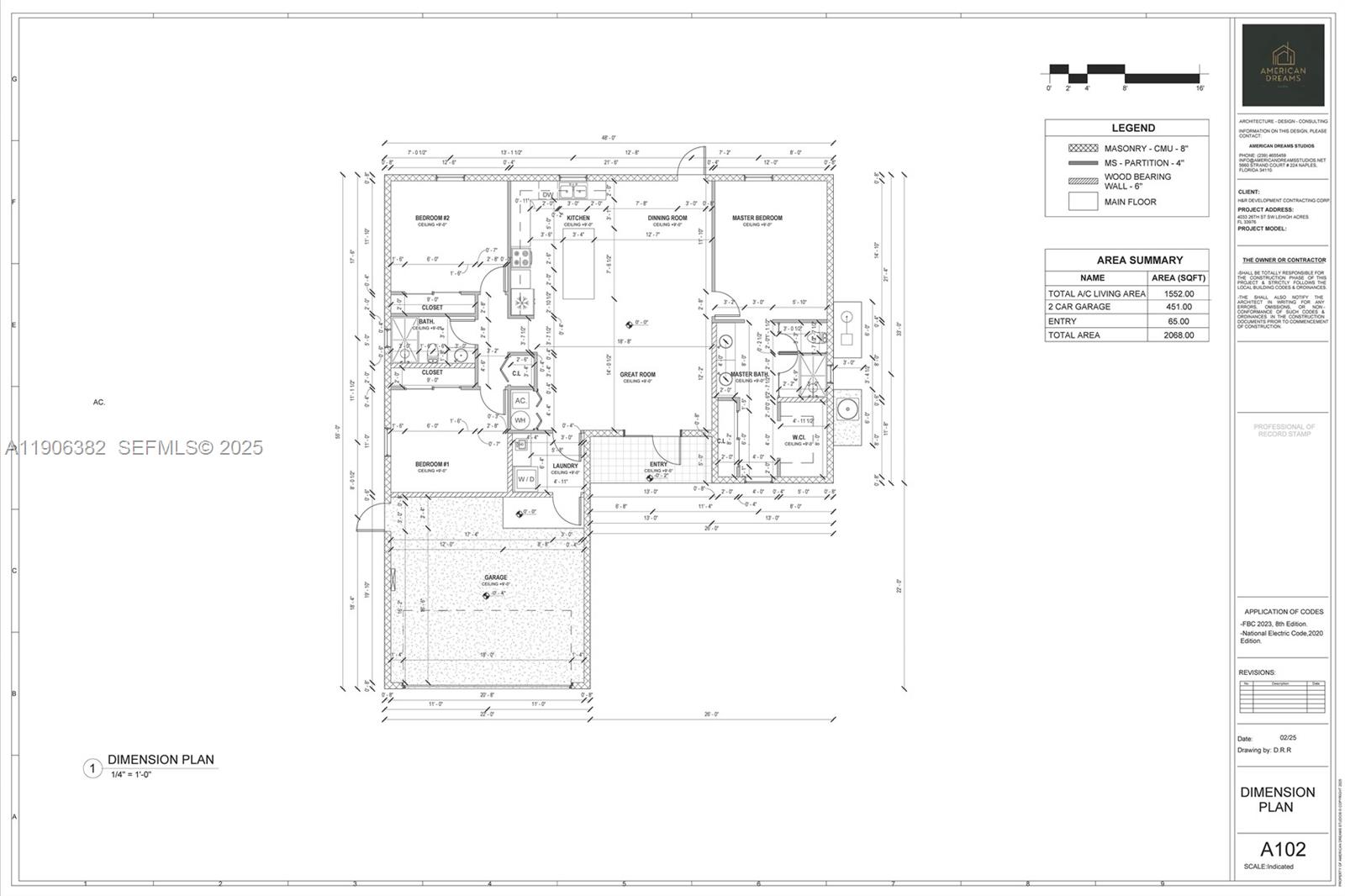
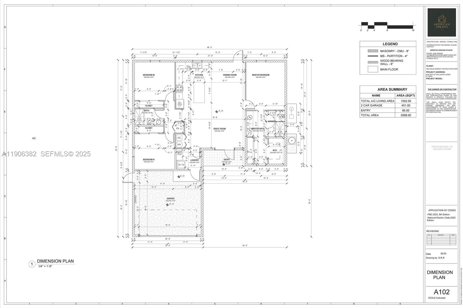
The survey has already been completed, and a model plan has been approved, so it is READY to build the property. Located in a rapidly growing area, these properties present an excellent investment opportunity. The 33976 zip code is the most popular in Lehigh Acres. Spanish is also spoken in the area. They are close to Southwest Florida International Airport, Fort Myers beaches, I-75, SR 82, shopping centers, medical services, schools, restaurants, JetBlue Park, and more. What truly sets this property apart is that it includes advanced planning and development work for a contemporary style home, saving the buyer months of paperwork, upfront costs, and administrative risk. The package includes: Complete architectural design for a contemporary 2,068 sq ft home with 3 BEDROOMS, 2 FULL BATHROOMS, and a 2-CAR GARAGE + Completed topographic survey, ready for immediate use + Approved floor plans, ready to proceed with final permitting + Approved SEPTIC SYSTEM design, including the AEROBIC TREATMENT UNIT, meeting all current county requirements. No trees to remove. Compared to other raw lots in the area, this parcel offers substantial savings in technical studies, engineering, design work, and permitting time, which fully justifies its higher market value. This property is READY to build. Located in a rapidly growing area, 33976 is one of the most sought-after areas in Lehigh Acres.

Localización


Información requerida
Mila Bogatov
Mila Bogatov
Corredor Inmobiliario