Coral Ridge Galt Add 1 For Sale
2825 Ne 27th St, Fort Lauderdale, FL 33306

$1,080,000
Vendido
Mila Bogatov
Mila Bogatov
Corredor Inmobiliario

Detalles


  • Número MLS:A10881204
  • Tour virtual:
  • Precio: $1,249,000
  • Precio vendido: $1,080,000
  • Impuesto anual:$14,130
  • Frente al agua:
  • Fecha de listado:June 24, 2020
  • Fecha Vendido: January 15, 2021
  • Días en el Mercado:204

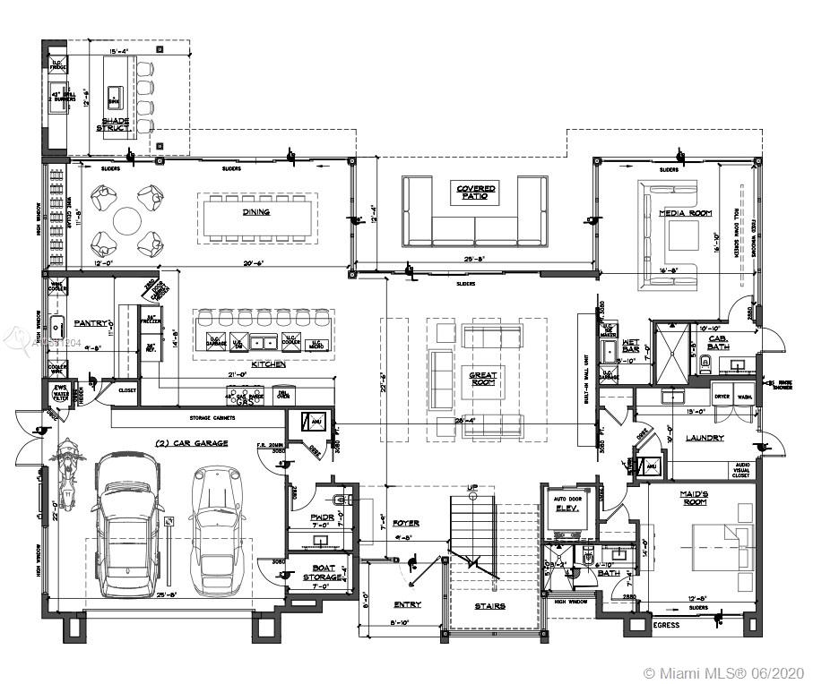
Descripción


Beautiful waterfront vacant lot with direct views to the intracoastal. The lot has 100 feet of canal front with no fixed bridges making this perfect for the boat lovers. Close to waterfront dining and minutes away to Port Everglades Inlet giving you access to the ocean. The seller is selling this with the design seen on the pictures which has a beautiful modern home with 7,594 total square feet, 5 bedrooms , 6 1/2 Baths, media room, gym, pool and much more. Please see floor plans for more details.

Características


  • Frente al agua:CanalFront

Localización


Información requerida
Mila Bogatov
Mila Bogatov
Corredor Inmobiliario